龙湖品质洋房,带120平私家露台,近商圈,近江边
-
156万
总价
-
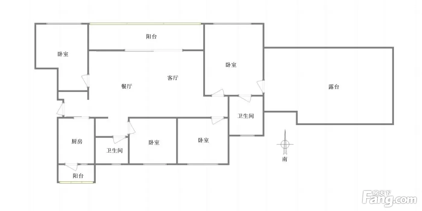
4室1厅
户型
-
118.28㎡
建筑面积
买房加房产交流群,省钱不踩雷
3000+人正在热聊
-
单价
13190元/平米
- 挂牌价格解析
-
楼层
高楼层/9层
- 咨询楼层
-
套内
100.99㎡
- 咨询套内使用面积
-
楼型
板楼
-
朝向
东
-
装修
毛坯
-
供暖
暂无数据
-
发布
2025-11-08
-
地铁
距2号线建桥站约732米
-
咨询总首付
首付约47.2万
首付税费及佣金情况 -
深度测评
小区焕城·林屿(大渡口-建桥-钓鱼嘴)
-
更多
楼户比、楼层高度、交易历史、抵押信息
房源描述(1)
-
核心卖点问经纪人
相信为您推荐的这套房子您一定会满意,赶快行动吧,先到先得! 房屋年代∶null,面积∶117.66平方米,朝向∶东 1. 小区配备高端物业管理,让你享受宾至如归的服务; 2. 小区人文素质高,是您的居家的绝佳选择; 3. 小区居住安静舒适,让您拥有高品质的生活环境; 4. 小区绿化率高,绿树成荫鸟语花香让您随时呼吸到新鲜空气。
-
业主心态问经纪人
业主已委托挂牌 诚心出售 感兴趣的随时咨询 欢迎您看房
-
服务介绍问经纪人
本人做房产9年 有着专业的房产知识为您服务 我会在最短的时间内帮您匹配如意的房子 买卖不是交易的结束 贰而是开始 一次交易 终身朋友
-
税费分析房贷计算
本公司100万以下房源仅需3666中介费 100万以上仅需6666中介费
周边配套
交通综合评分
查看全部超过重庆0.0%的小区
-
地铁公交
10.0
-
驾车出行
10.0
本月均价 10649元/m²
环比上月 下跌 1.24%
同比去年 下跌 21.27%
猜你喜欢
同小区其它房源
户型齐全,主打全明格局,户型方正四居
焕城·林屿户型主要有117平-168平的全明格局,户型方正的四居 、98平-99平的全明格局,户型方正的三居 。
*获取完整户型报告,同时会有免费语音讲解服务
买房加房产交流群,省钱不踩雷
3000+人正在热聊
- 免费咨询
- 专业服务
- 区域解读
- 户型分析

