明厨明卫经典开间,通风好,楼间距宽,无遮挡视野好
-
72.8万
总价
-
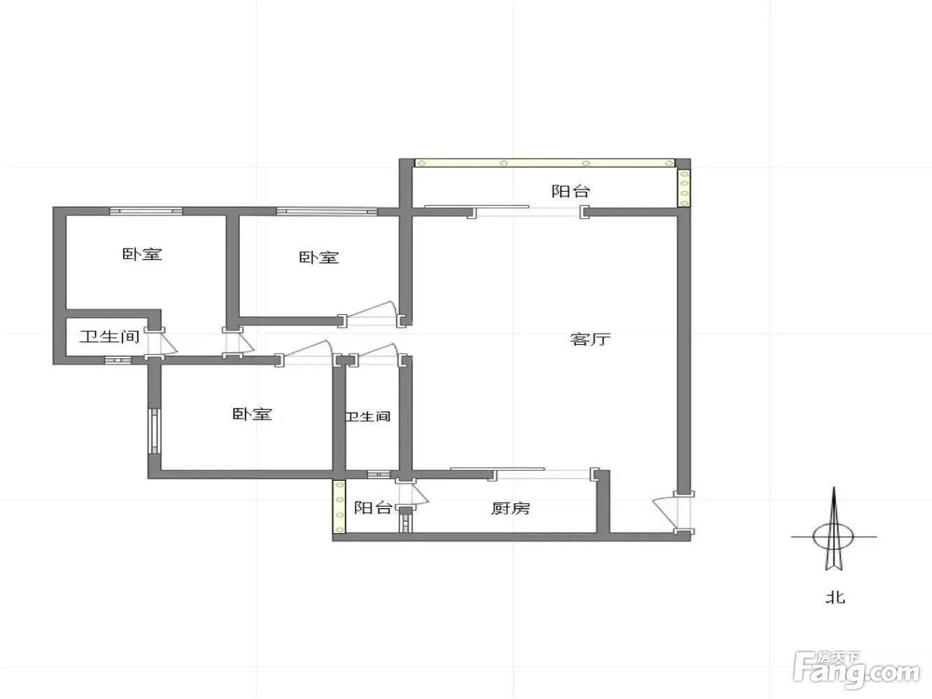
3室2厅
户型
-
93.7㎡
建筑面积
买房加房产交流群,省钱不踩雷
3000+人正在热聊
-
单价
7770元/平米
- 挂牌价格解析
-
楼层
高楼层/34层
- 咨询楼层
-
套内
75.1㎡
- 咨询套内使用面积
-
楼型
塔楼
-
朝向
北
-
装修
简装
-
供暖
暂无数据
-
发布
2021-05-24
-
地铁
距1号线大学城站约511米
-
咨询总首付
首付约18.8万
首付税费及佣金情况 -
深度测评
小区富力城新壹站(沙坪坝-大学城)
-
更多
楼户比、楼层高度、交易历史、抵押信息
房源描述(1)
-
核心卖点问经纪人
相信为您推荐的这套房子您一定会满意,赶快行动吧,先到先得! 房屋年代∶null,面积∶93.96平方米,朝向∶北 1. 小区配备高端物业管理,让你享受宾至如归的服务; 2. 小区人文素质高,是您的居家的绝佳选择; 3. 小区居住安静舒适,让您拥有高品质的生活环境; 4. 小区绿化率高,绿树成荫鸟语花香让您随时呼吸到新鲜空气。
-
业主心态问经纪人
房东置换,诚心出售,价格可以再谈,欢迎看房,随时恭候。
-
小区配套问经纪人
位置:小区地理位置佳,绿化率高,居民素质高 配套:有健身器材,小型篮球场,可供小区居民使用 车位:停车位充足,建有地上停车场和地下车库 保安:小区内24保安巡逻
-
服务介绍问经纪人
本人从事房地产多年,公司有大量好房源,欢迎进入我的店铺查看,欢迎随时电话咨询,相信我的专业,为您置业安家保驾护航。
周边配套
交通综合评分
查看全部超过重庆82.4%的小区
-
地铁公交
10.0
-
驾车出行
7.0
本月均价 9479元/m²
环比上月 下跌 1.83%
同比去年 下跌 11.91%
猜你喜欢
同小区其它房源
户型齐全,主打主卧朝南一居
富力城新壹站户型主要有33平-61平的主卧朝南的一居 、87平-108平的明卫,双阳台,双卧朝南,主卧朝南的三居 、61平-75平的明卫,双阳台的二居 。
*获取完整户型报告,同时会有免费语音讲解服务
-
10068元/㎡
本月挂牌均价
-
0.03%
环比上月
买房加房产交流群,省钱不踩雷
3000+人正在热聊
- 免费咨询
- 专业服务
- 区域解读
- 户型分析


