礼嘉天街旁带很大个露台精装修全屋质保看房随时来质保五年
-
143万
总价
-
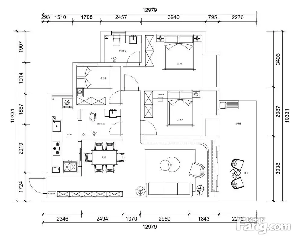
3室2厅2卫
户型
-
101㎡
建筑面积
买房加房产交流群,省钱不踩雷
3000+人正在热聊
-
单价
14158元/平米
- 挂牌价格解析
-
楼层
低楼层/18层
- 咨询楼层
-
套内
82㎡
- 咨询套内使用面积
-
朝向
北
-
装修
精装修
-
年代
2019
-
发布
1900-01-01
-
地铁
距6号线九曲河约563米
-
咨询总首付
首付约43.3万
首付税费及佣金情况 -
深度测评
小区远洋九公子(两江新区-礼嘉)
-
更多
楼户比、楼层高度、交易历史、抵押信息
房源描述(1)
-
核心卖点问经纪人
相信为您推荐的这套房子您一定会满意,赶快行动吧,先到先得! 房屋年代∶null,面积∶101.0平方米,朝向∶北 1. 小区配备高端物业管理,让你享受宾至如归的服务; 2. 小区人文素质高,是您的居家的绝佳选择; 3. 小区居住安静舒适,让您拥有高品质的生活环境; 4. 小区绿化率高,绿树成荫鸟语花香让您随时呼吸到新鲜空气。
业主自评
-
晓筑潘洪亮
加入房天下1744天
全屋一线家具家电 带露台 已经搭了棚的,正规三房双卫,水电线路质保五年,防水质保5年,隐蔽工程通通质保5年,华帝厨卫三件套质保3年,格力空调风管机质保6年,天地墙质保1-3年,玮兰床垫质保十年,九牧卫浴质保1年,西门子开关质保一年!放心大胆卖!
周边配套
交通综合评分
查看全部超过重庆8.7%的小区
-
地铁公交
9.0
-
驾车出行
10.0
本月均价 13349元/m²
环比上月 下跌 2.31%
同比去年 下跌 7.63%
猜你喜欢
同小区其它房源
户型齐全,主打明卫,明厨,双阳台,主卧朝南四居
远洋九公子户型主要有108平-141平的明卫,明厨,双阳台,主卧朝南的四居 、87平-156平的明卫,双阳台,双卧朝南,主卧朝南的三居 、50平-50平的户型方正,采光充足的一居 。
*获取完整户型报告,同时会有免费语音讲解服务
-
15401元/㎡
本月挂牌均价
-
0.71%
环比上月
买房加房产交流群,省钱不踩雷
3000+人正在热聊
- 免费咨询
- 专业服务
- 区域解读
- 户型分析



