重庆天地 全玻璃幕墙 电梯独立入户 轻轨9号线
-
728万
总价
-
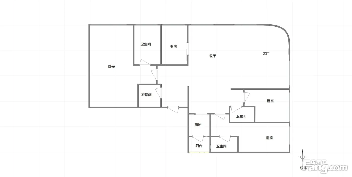
4室2厅
户型
-
237㎡
建筑面积
买房加房产交流群,省钱不踩雷
3000+人正在热聊
加入群聊
-
单价
30718元/平米
- 挂牌价格解析
-
楼层
高楼层/40层
- 咨询楼层
-
套内
暂无数据
- 咨询套内使用面积
-
楼型
塔楼
-
朝向
北
-
装修
精装
-
供暖
暂无数据
-
发布
2025-01-11
-
地铁
距9号线化龙桥站约603米
-
咨询总首付
首付约242.5万
首付税费及佣金情况 -
深度测评
小区万科锦绣滨江(渝中-化龙桥)
-
更多
楼户比、楼层高度、交易历史、抵押信息
房源描述(1)
-
核心卖点问经纪人
相信为您推荐的这套房子您一定会满意,赶快行动吧,先到先得! 房屋年代∶null,面积∶237.19平方米,朝向∶东北 1. 小区配备高端物业管理,让你享受宾至如归的服务; 2. 小区人文素质高,是您的居家的绝佳选择; 3. 小区居住安静舒适,让您拥有高品质的生活环境; 4. 小区绿化率高,绿树成荫鸟语花香让您随时呼吸到新鲜空气。
周边配套
地址:458米陆海国际中心旁
交通综合评分
查看全部6.1
“较好”
超过重庆26.3%的小区
-
地铁公交
10.0
-
驾车出行
7.0
本月均价 28724元/m²
环比上月 下跌 0.95%
同比去年 下跌 4.74%
猜你喜欢
同小区其它房源
-
14652元/㎡
本月挂牌均价
-
0.32%
环比上月
买房加房产交流群,省钱不踩雷
3000+人正在热聊
加入群聊
- 免费咨询
- 专业服务
- 区域解读
- 户型分析
免责声明:房源信息由网站用户提供,其真实性、合法性由信息提供者负责,最终以政府部门登记备案为准。本网站不声明或保证内容之正确性和可靠性,购买该房屋时,请谨慎核查。入学情况仅凭历史经验总结,在此不承诺升学事宜。请您在签订合同之前,切勿支付任何形式的费用,以免上当受骗。


