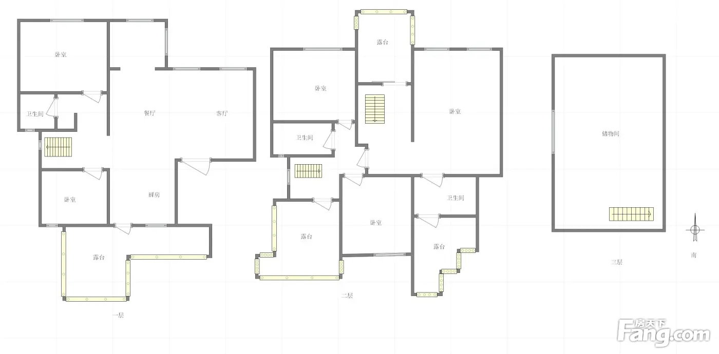
北滨路洋房顶跃,五房三卫四露台舒适采光好都是大卧室
-
408万
总价
-
5室2厅
户型
-
159.81㎡
建筑面积
买房加房产交流群,省钱不踩雷
3000+人正在热聊
-
单价
25531元/平米
- 挂牌价格解析
-
楼层
高楼层/6层
- 咨询楼层
-
套内
132.22㎡
- 咨询套内使用面积
-
楼型
板楼
-
朝向
南
-
装修
精装
-
供暖
暂无数据
-
发布
2025-05-06
-
地铁
距9号线李家坪站约800米
-
咨询总首付
首付约135.5万
首付税费及佣金情况 -
深度测评
小区国美江天御府(江北-北滨路)
-
更多
楼户比、楼层高度、交易历史、抵押信息
房源描述(2)
-
核心卖点问经纪人
相信为您推荐的这套房子您一定会满意,赶快行动吧,先到先得! 房屋年代∶null,面积∶160.0平方米,朝向∶南 1. 小区配备高端物业管理,让你享受宾至如归的服务; 2. 小区人文素质高,是您的居家的绝佳选择; 3. 小区居住安静舒适,让您拥有高品质的生活环境; 4. 小区绿化率高,绿树成荫鸟语花香让您随时呼吸到新鲜空气。
-
业主心态问经纪人
1.产权清晰,无纠纷。 2.此房源为二手房,业主诚心出售,价格好商量。 3.看房不收取任何费用。 4.本人专注二手和一手新房,希望能为您的置业提供帮助。电话(同号)
-
小区配套问经纪人
小区环境优美,配套成熟,周边交通便利,居住舒适。 小区地理位置俱佳,绿化,容积率大 小区内配套设施齐全,篮球场,网球场,羽毛球场老人活动中心,儿童游乐中心等。
-
服务介绍问经纪人
我司服务理念:客户至上,阳光交易,真诚服务客户。 作为一名经纪人,真诚接待客户,专业服务,免费咨询,房源匹配精准,让客户便捷无忧! 我是小陈期待你的来电,我将会热情接听,为你传达你想了解的每一个细节。
-
税费分析房贷计算
二手房:个人所得税1% 首套:契税:140平以下:1%;140平以上1.5%。 二套:契税:140平以上:1%;140平以上2% 三套及以上:契税:3%
-
户型解读问经纪人
1.阳台面积半赠送,飘窗全赠送,儿童房面积部分半赠送。 2.户型方正,没有浪费面积,视野开阔,无遮挡,私密性好! 3.小区环境优雅,配套成熟,周边交通便利,居住舒适。 4.小区地理位置佳,绿化,居民素质高。配套:篮球,网球,羽毛球等公共设施。
-
核心卖点问经纪人
相信为您推荐的这套房子您一定会满意,赶快行动吧,先到先得! 房屋年代∶null,面积∶160.0平方米,朝向∶南 1. 小区配备高端物业管理,让你享受宾至如归的服务; 2. 小区人文素质高,是您的居家的绝佳选择; 3. 小区居住安静舒适,让您拥有高品质的生活环境; 4. 小区绿化率高,绿树成荫鸟语花香让您随时呼吸到新鲜空气。
周边配套
交通综合评分
查看全部超过重庆79.2%的小区
-
地铁公交
10.0
本月均价 21144元/m²
环比上月 下跌 0.67%
同比去年 上涨 0.38%
猜你喜欢
同小区其它房源
户型齐全,主打户型方正,干湿分离三居
国美江天御府户型主要有100平-160平的户型方正,干湿分离的三居 、137平-175平的主卧套间,带露台的四居 、179平-179平的明卫的五居 。
*获取完整户型报告,同时会有免费语音讲解服务
买房加房产交流群,省钱不踩雷
3000+人正在热聊
- 免费咨询
- 专业服务
- 区域解读
- 户型分析


