南滨路看两江交汇景观房。长嘉汇 头排全看江 6房 房源保真!
-
1100万
总价
-
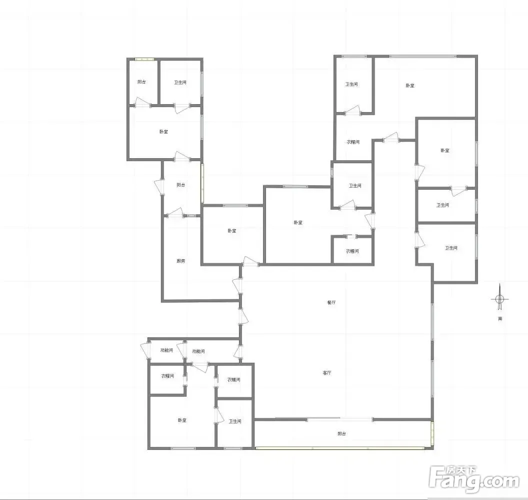
6室2厅4卫
户型
-
330.47㎡
建筑面积
买房加房产交流群,省钱不踩雷
3000+人正在热聊
-
单价
33286元/平米
- 挂牌价格解析
-
楼层
低层/28层
- 咨询楼层
-
套内
暂无数据
- 咨询套内使用面积
-
楼型
板楼
-
朝向
南
-
装修
豪华装修
-
年代
2019
-
发布
2026-02-01
-
地铁
距环线弹子石站约875米
-
咨询总首付
首付约330.9万
首付税费及佣金情况 -
深度测评
小区长嘉汇四期(南岸-涂山路)
-
更多
楼户比、楼层高度、交易历史、抵押信息
房源描述(1)
-
核心卖点问经纪人
相信为您推荐的这套房子您一定会满意,赶快行动吧,先到先得! 房屋年代∶null,面积∶330.47平方米,朝向∶南 1. 小区配备高端物业管理,让你享受宾至如归的服务; 2. 小区人文素质高,是您的居家的绝佳选择; 3. 小区居住安静舒适,让您拥有高品质的生活环境; 4. 小区绿化率高,绿树成荫鸟语花香让您随时呼吸到新鲜空气。
-
业主心态问经纪人
1.产权清晰,无纠纷。2.此房源为二手房,业主诚心出售,价格好商量。3.看房不收取任何费用。4.本人专注二手和一手新房,希望能为您的置业提供帮助。电话(同号)
-
小区配套问经纪人
小区环境优美,配套成熟,周边交通便利,居住舒适。小区地理位置俱佳,绿化,容积率大小区内配套设施齐全,篮球场,网球场,羽毛球场老人活动中心,儿童游乐中心等。
-
服务介绍问经纪人
本人从事房地产多年,公司有大量好房源,欢迎进入我的店铺查看,欢迎随时电话咨询,相信我的专业,为您置业安家保驾护航。
-
税费分析房贷计算
二手房:个人所得税1%首套:契税:140平以下:1%;140平以上1.5%。二套:契税:140平以上:1%;140平以上2%三套及以上:契税:3%
周边配套
交通综合评分
查看全部超过重庆6.9%的小区
-
地铁公交
10.0
-
驾车出行
10.0
本月均价 19004元/m²
环比上月 下跌 1.39%
同比去年 下跌 7.61%
猜你喜欢
同小区其它房源
买房加房产交流群,省钱不踩雷
3000+人正在热聊
- 免费咨询
- 专业服务
- 区域解读
- 户型分析

