想置业的朋友看一下,中国铁建西派城 402万 5室2厅3卫
-
402万
总价
-
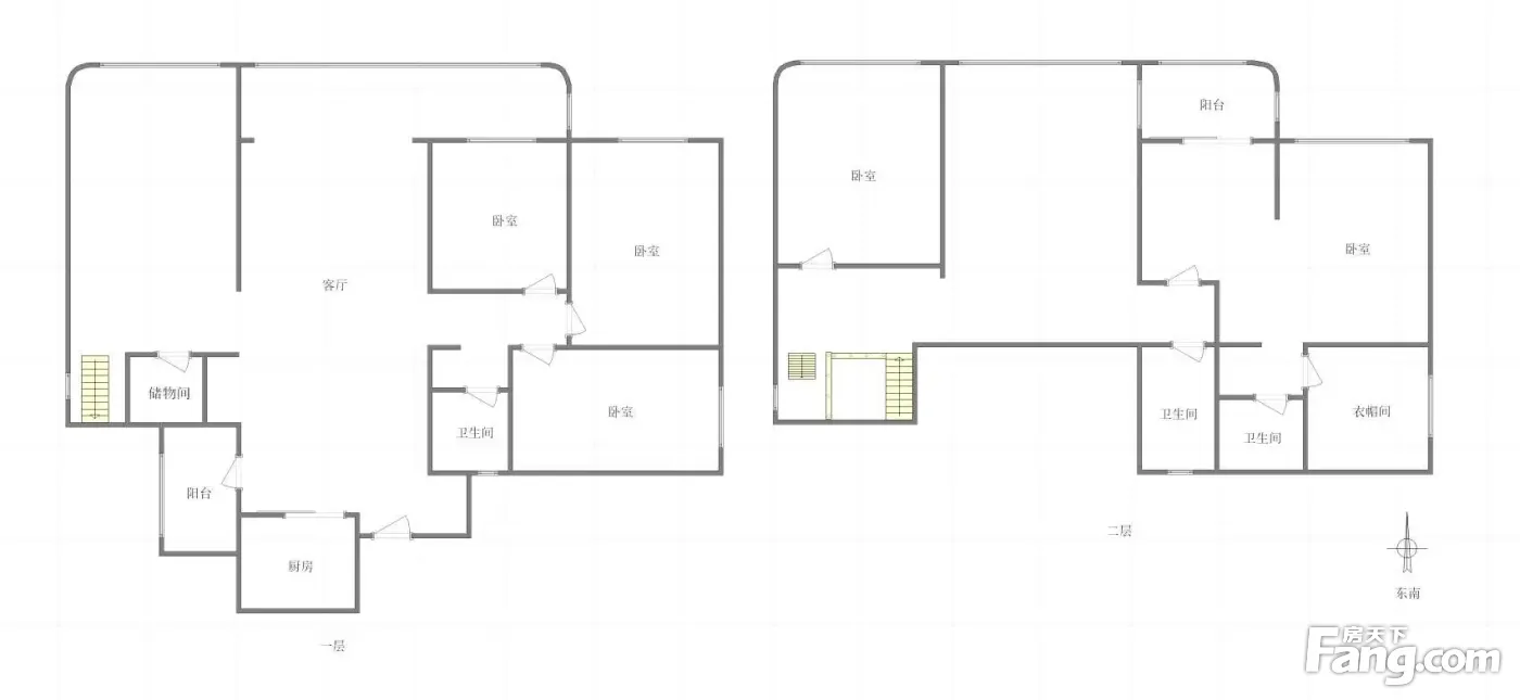
5室2厅3卫
户型
-
274.01㎡
建筑面积
买房加房产交流群,省钱不踩雷
3000+人正在热聊
-
单价
14671元/平米
- 挂牌价格解析
-
楼层
高层/42层
- 咨询楼层
-
套内
暂无数据
- 咨询套内使用面积
-
楼型
板楼
-
朝向
南
-
装修
豪华装修
-
年代
2021
-
发布
2026-01-03
-
地铁
距4号线头塘站约895米
-
咨询总首付
首付约133.9万
首付税费及佣金情况 -
深度测评
小区中国铁建西派城(两江新区-海尔路)
-
更多
楼户比、楼层高度、交易历史、抵押信息
房源描述(1)
-
核心卖点问经纪人
基本信息,5室2厅3卫, 高层观景 格局未改过,看房感受1、明厨明卫,清晨就能沐浴阳光中,保持一天好心情; 2、户型结构可塑性大,可根据品味较好布置; 3、楼下就是超市和公园,增添了不少生活情趣和气息。 2011年感言 感谢所有的客户和业主,正是因为你们给予的信任让我有更多机会不断成长;感谢各位同仁,正是因为大家对我专业的认可,房源帖子的“疯狂追捧拷贝”才让我更有自信和动力提升自我。政策出台,市场波动,我们的专业、坚定在洗礼中历经考验。 成功法则:我相信,只要每天进步一点点,不断地强大自我,世界将为我让步! 2011年房市,让我们继续携手并进,同享丰收!
-
业主心态问经纪人
房东置换,诚心出售,价格可以再谈,欢迎看房,随时恭候。
-
小区配套问经纪人
位置:小区地理位置佳,绿化率高,居民素质高 配套:有健身器材,小型篮球场,可供小区居民使用 车位:停车位充足,建有地上停车场和地下车库 保安:小区内24保安巡逻
-
服务介绍问经纪人
本人从事房地产多年,公司有大量好房源,欢迎进入我的店铺查看,欢迎随时电话咨询,相信我的专业,为您置业安家保驾护航。
周边配套
交通综合评分
查看全部超过重庆4.7%的小区
-
地铁公交
9.0
-
驾车出行
10.0
本月均价 18718元/m²
环比上月 下跌 0.43%
同比去年 下跌 5.3%
猜你喜欢
同小区其它房源
买房加房产交流群,省钱不踩雷
3000+人正在热聊
- 免费咨询
- 专业服务
- 区域解读
- 户型分析


