照母山香港置地翠微堤别墅!大花园 单层面积大 六房 欢迎咨询
-
780万
总价
-
6室2厅4卫
户型
-
323.09㎡
建筑面积
买房加房产交流群,省钱不踩雷
3000+人正在热聊
-
单价
24142元/平米
- 挂牌价格解析
-
楼层
1层
- 咨询楼层
-
套内
暂无数据
- 咨询套内使用面积
-
楼型
独栋
-
朝向
南
-
装修
精装修
-
发布
2026-02-04
-
地铁
距5号线重光站约781米
-
咨询总首付
首付约239.2万
首付税费及佣金情况 -
深度测评
小区约克郡翠微堤(两江新区-照母山)
-
更多
楼户比、楼层高度、交易历史、抵押信息
房源描述(1)
-
核心卖点问经纪人
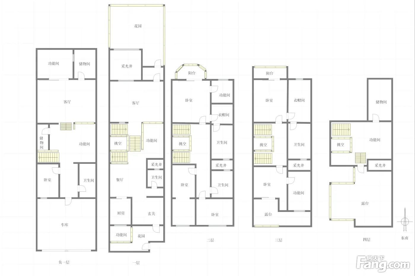
该房源位于两江新区照母山怡和路9号的约克郡翠微堤小区,是一套建筑面积达323.09平米的精装修别墅。房屋为南朝向,采光充足,地上1层的设计让居住更加舒适便捷。房本满五,交易更省心。 户型设计非常实用,拥有6间卧室、2个客厅和4个卫生间,满足大家庭的居住需求。此外,还带有3个阳台,进一步拓展了生活空间。精装修的品质让您拎包即可入住,省去装修的繁琐。小区环境优越,周边配套成熟,是改善居住条件的理想选择。
-
业主心态问经纪人
1.产权清晰,无纠纷。 2.此房源为二手房,业主诚心出售,价格好商量。 3.看房不收取任何费用。 4.本人专注二手和一手新房,希望能为您的置业提供帮助。电话(同号)
-
小区配套问经纪人
1.小区带书包。 2.轻轨5号线,公交线路丰富。开车到欢乐谷3,到汽博中心5。 3.开车到礼嘉儿童医院10,到金山医院3。到重庆市人民医院10。 小区环境优美,配套成熟,周边交通便利,居住舒适。 小区地理位置俱佳,绿化,容积率大 小区内配套设施齐全,篮球场,网球场,羽毛球场老人活动中心,儿童游乐中心等。
-
服务介绍问经纪人
我司服务理念:客户至上,阳光交易,真诚服务客户。 作为一名经纪人,真诚接待客户,专业服务,免费咨询,房源匹配精准,让客户便捷无忧! 我是小陈期待你的来电,我将会热情接听,为你传达你想了解的每一个细节。
-
税费分析房贷计算
二手房:个人所得税1% 首套:契税:140平以下:1%;140平以上1.5%。 二套:契税:140平以上:1%;140平以上2% 三套及以上:契税:3%
-
户型解读问经纪人
相信为您推荐的这套房子您一定会满意,赶快行动吧,先到先得! 房屋年代∶null,面积∶323.09平方米,朝向∶ 1. 小区配备高端物业管理,让你享受宾至如归的服务; 2. 小区人文素质高,是您的居家的绝佳选择; 3. 小区居住安静舒适,让您拥有高品质的生活环境; 4. 小区绿化率高,绿树成荫鸟语花香让您随时呼吸到新鲜空气。
周边配套
交通综合评分
查看全部超过重庆8.6%的小区
-
地铁公交
9.0
-
驾车出行
10.0
猜你喜欢
同小区其它房源
户型齐全,主打明卫,明厨,客厅朝南,全明格局五居
约克郡翠薇堤户型主要有296平-356平的明卫,明厨,客厅朝南,全明格局的五居 、351平-390平的明卫,客厅朝南,双阳台的四居 、351平-415平的客厅朝南,双阳台,明卫的其他居 。
*获取完整户型报告,同时会有免费语音讲解服务
-
19419元/㎡
本月挂牌均价
-
0.06%
环比上月
买房加房产交流群,省钱不踩雷
3000+人正在热聊
- 免费咨询
- 专业服务
- 区域解读
- 户型分析

