两江新区精装四房 地铁旁 玻璃外墙 品质小区 大平层
-
278万
总价
-
4室2厅2卫
户型
-
176㎡
建筑面积
买房加房产交流群,省钱不踩雷
3000+人正在热聊
-
单价
15795元/平米
- 挂牌价格解析
-
楼层
低层/40层
- 咨询楼层
-
套内
暂无数据
- 咨询套内使用面积
-
楼型
板楼
-
朝向
东北
-
装修
精装修
-
年代
2020
-
发布
2025-12-13
-
地铁
距4号线头塘站约895米
-
咨询总首付
首付约92.9万
首付税费及佣金情况 -
深度测评
小区中国铁建西派城(两江新区-海尔路)
-
更多
楼户比、楼层高度、交易历史、抵押信息
房源描述(1)
-
核心卖点问经纪人
咨询电话: 杜丽娟 轻松而便捷,随时看房 假如您看到看好或者满意的房子,请时间跟我联系,我非常荣幸的竭诚为您介绍 源,100%真实照片,我已看过房子,真的不错 房子格局非常的舒适,室内布局方正,布合理让你进去有一种非常舒适的享受感。
-
业主心态问经纪人
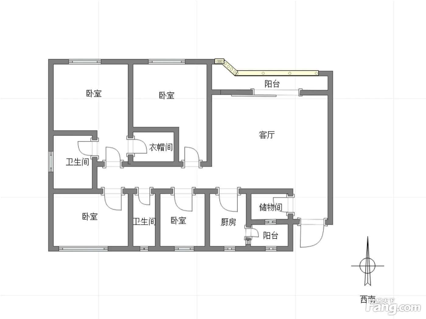
本房源位于重庆两江新区核心地段的中国铁建西派城小区,紧邻江北区府和海尔路交通要道,地理位置优越。2020年建成的次新房,176平米精装修四居室,户型方正实用,4室2厅2卫1厨1阳台的格局满足大家庭居住需求。东北朝向采光良好,低楼层居住舒适,40层的高层建筑视野开阔。 房源为满二产权,可节省可观税费,现报价278万元,折合单价仅15795元/平米,性价比突出。小区物业品质有保障,精装修标准可直接拎包入住,省去装修烦恼。周边商业配套成熟,交通便利,是改善型家庭的优质选择。
-
小区配套问经纪人
周边配套: 兰溪菜市场,重庆普泰广场,华润弹子石万象汇,保税商品展示交易市场,华容市场,新世纪百货(溉澜溪店),重百商场(鲁能星城店),重庆砂之船奥莱B馆,佳坊(兰溪店),天宫殿菜市场 税费解析 交通出行: 小区旁有地铁4号线和9号线换乘站(头塘站),公交车近十路,公共出行便利。旁边即是内环快速出入口,自驾出行无忧。
-
服务介绍问经纪人
您好,感谢您浏览我发布的房源,从事房产行业多年,也将长期从事房产行业,对房源特别了解,本着专业的房产知识为您服务,帮您节省时间和精力,希望得到您的信赖.
-
税费分析房贷计算
产权干净,税费清晰,为避免泄露业主信息,欢迎来电咨询了解该房屋详情。
-
户型解读问经纪人
西派城位于重庆市江北海尔路,由中铁房地产集团重庆有限公司建成,二期小区共六栋,总建筑面积930122,总占地面积175158,共计房屋606户,小区物业公司为中铁建(北京)物业管理有限公司重庆分公司
周边配套
交通综合评分
查看全部超过重庆4.7%的小区
-
地铁公交
9.0
-
驾车出行
10.0
本月均价 18718元/m²
环比上月 下跌 0.43%
同比去年 下跌 5.3%
猜你喜欢
同小区其它房源
买房加房产交流群,省钱不踩雷
3000+人正在热聊
- 免费咨询
- 专业服务
- 区域解读
- 户型分析

