新上 端户洋房送12O平花园 三房 视野极佳 价格也到位
-
77万
总价
-
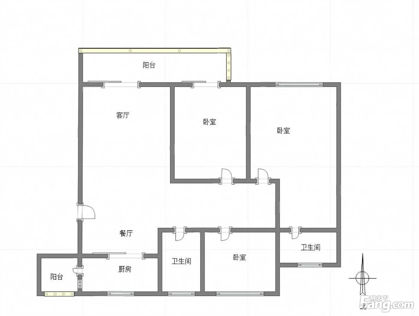
3室2厅2卫
户型
-
97.08㎡
建筑面积
买房加房产交流群,省钱不踩雷
3000+人正在热聊
-
单价
7932元/平米
- 挂牌价格解析
-
楼层
底层/8层
- 咨询楼层
-
套内
暂无数据
- 咨询套内使用面积
-
楼型
板楼
-
朝向
南
-
装修
毛坯
-
年代
2021
-
发布
2025-11-19
-
咨询总首付
首付约20万
首付税费及佣金情况 -
深度测评
小区融创溪山春晓(北碚-蔡家)
-
更多
楼户比、楼层高度、交易历史、抵押信息
房源描述(1)
-
核心卖点问经纪人
相信为您推荐的这套房子您一定会满意,赶快行动吧,先到先得! 房屋年代:2021年,朝向:南,空间利用率高 小区简介: 1. 小区物业管理严格,服务到家让你生活放心 2. 小区人文素质高 3. 小区居住安静舒适,让您居住并享受品质生活中的 4. 小区绿化率高达,绿树成荫鸟语花香让您随时呼吸到新鲜空气
-
业主心态问经纪人
业主很信任我,我能了解业主卖房新的动态。目前政策已经基本稳定,是入手的好时候。请不要错过性价比高的好房。
-
小区配套问经纪人
位置:小区地理位置佳,绿化率高,居民素质高 配套:有健身器材,小型篮球场,可供小区居民使用 车位:停车位充足,建有地上停车场和地下车库 保安:小区内24保安巡逻
-
服务介绍问经纪人
本人从事房地产多年,公司有大量好房源,欢迎进入我的店铺查看,欢迎随时电话咨询,相信我的专业,为您置业安家保驾护航。
周边配套
交通综合评分
查看全部超过重庆39.7%的小区
-
地铁公交
9.0
-
驾车出行
10.0
本月均价 10424元/m²
环比上月 上涨 0.31%
同比去年 下跌 16.36%
猜你喜欢
同小区其它房源
户型齐全,主打全明格局,户型方正三居
融创溪山春晓户型主要有96平-98平的全明格局,户型方正的三居 、126平-126平的户型方正,主卧带卫,大面宽阳台的四居 。
*获取完整户型报告,同时会有免费语音讲解服务
-
9392元/㎡
本月挂牌均价
-
0.56%
环比上月
买房加房产交流群,省钱不踩雷
3000+人正在热聊
- 免费咨询
- 专业服务
- 区域解读
- 户型分析

