真实工程抵款房 正看江 横厅设计 板式结构 一口价房源
-
155万
总价
-
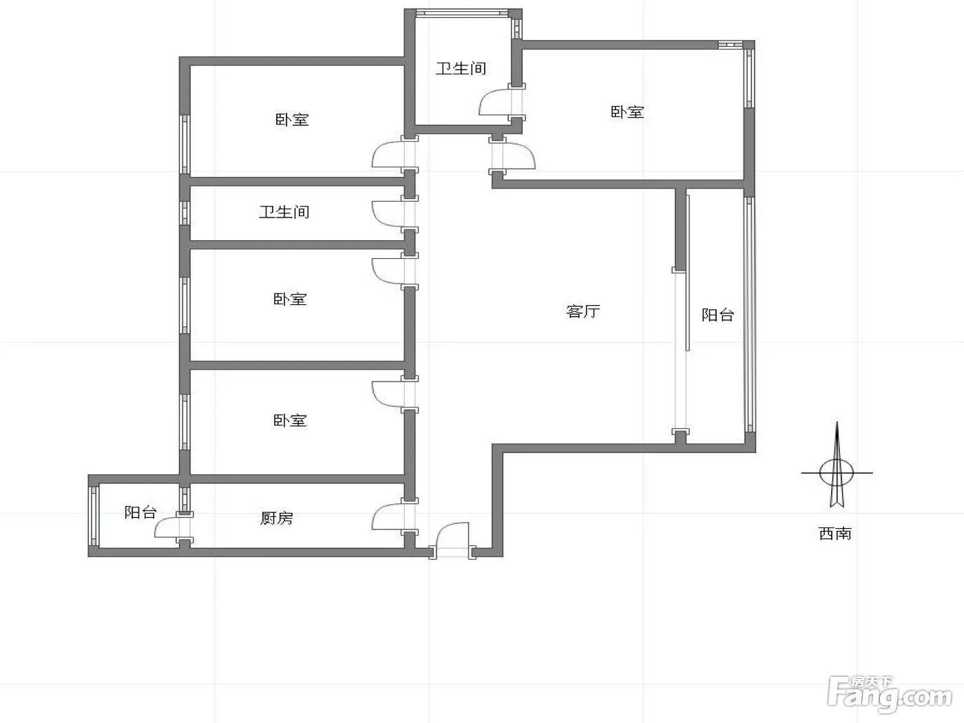
3室2厅2卫
户型
-
135㎡
建筑面积
买房加房产交流群,省钱不踩雷
3000+人正在热聊
-
单价
11481元/平米
- 挂牌价格解析
-
楼层
顶层/15层
- 咨询楼层
-
套内
暂无数据
- 咨询套内使用面积
-
楼型
板楼
-
朝向
西南
-
装修
精装修
-
年代
2022
-
发布
2025-11-16
-
咨询总首付
首付约40.5万
首付税费及佣金情况 -
深度测评
小区中粮天悦壹号(两江新区-石马河)
-
更多
楼户比、楼层高度、交易历史、抵押信息
房源描述(1)
-
核心卖点问经纪人
相信为您推荐的这套房子您一定会满意,赶快行动吧,先到先得! 房屋年代∶null,面积∶135.0平方米,朝向∶西南 1. 小区配备高端物业管理,让你享受宾至如归的服务; 2. 小区人文素质高,是您的居家的绝佳选择; 3. 小区居住安静舒适,让您拥有高品质的生活环境; 4. 小区绿化率高,绿树成荫鸟语花香让您随时呼吸到新鲜空气。
-
业主心态问经纪人
详情电话咨询: 到家了钟森24在线
-
小区配套问经纪人
1. 小区配备高端物业管理,让你享受宾至如归的服务; 2. 小区人文素质高,是您的居家的绝佳选择; 3. 小区居住安静舒适,让您拥有高品质的生活环境; 4. 小区绿化率高,绿树成荫鸟语花香让您随时呼吸到新鲜空气。
-
服务介绍问经纪人
中介服务费:成交价100万以下3666元 中介服务费:成交价100万以上6666元 按揭服务费:商贷2000元 权证过户:2000元 公积金贷款服务费:4000元
-
税费分析房贷计算
契税:一套住房140平米以下1%, 二套房140平米以下1%,140平米以上首套2% 二套2%,三套3%
-
户型解读问经纪人
朝向∶南 1. 小区配备高端物业管理,让你享受宾至如归的服务; 2. 小区人文素质高,是您的居家的绝佳选择; 3. 小区居住安静舒适,让您拥有高品质的生活环境; 4. 小区绿化率高,绿树成荫鸟语花香让您随时呼吸到新鲜空气。
周边配套
交通综合评分
查看全部超过重庆3.8%的小区
-
地铁公交
10.0
-
驾车出行
10.0
本月均价 15627元/m²
环比上月 上涨 3.94%
同比去年 上涨 2.5%
猜你喜欢
同小区其它房源
户型齐全,主打南北通透,全明格局三居
中粮天悦壹号户型主要有89平-170平的南北通透,全明格局的三居 、134平-255平的全明格局,户型方正的四居 。
*获取完整户型报告,同时会有免费语音讲解服务
-
14692元/㎡
本月挂牌均价
-
1.5%
环比上月
买房加房产交流群,省钱不踩雷
3000+人正在热聊
- 免费咨询
- 专业服务
- 区域解读
- 户型分析

