东海长洲B区 三房 装修新 采光好
-
79万
总价
-
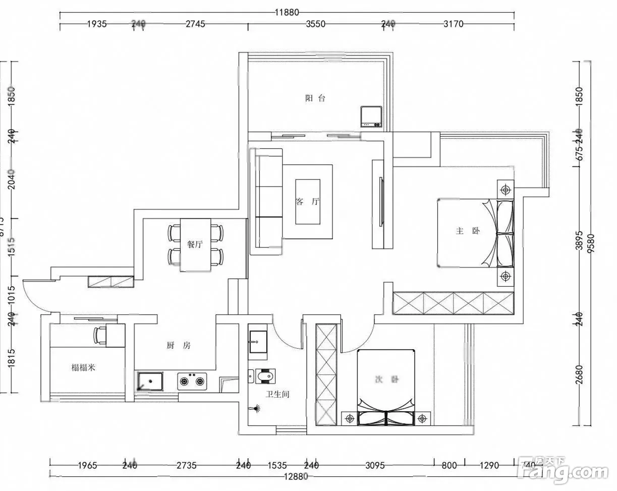
3室2厅1卫
户型
-
83.52㎡
建筑面积
买房加房产交流群,省钱不踩雷
3000+人正在热聊
-
单价
9459元/平米
- 挂牌价格解析
-
楼层
顶层/28层
- 咨询楼层
-
套内
暂无数据
- 咨询套内使用面积
-
楼型
板楼
-
朝向
南
-
装修
精装修
-
年代
2008
-
发布
2025-10-28
-
地铁
距环线涂山站约184米
-
咨询总首付
首付约20.4万
首付税费及佣金情况 -
深度测评
小区东海长洲(南岸-涂山路)
-
更多
楼户比、楼层高度、交易历史、抵押信息
房源描述(1)
-
核心卖点问经纪人
【房源简介】2008年建成,高层视野开阔,朝南布局,采光通风俱佳。三室两厅一卫设计,空间利用高效,无浪费面积,餐厅客厅可分离,生活动线合理。精装修,电梯,设施齐全,物业管理完善,24保安服务。周边配套完善,适合居住。产权为商品房,满两年 ,价格79万。
-
业主心态问经纪人
【业主心态】业主因工作调动,急售此房。与我关系密切,信任度高,愿意配合看房和议价,手续齐全。我将全力协助买卖双方,确保交易顺利进行。业主诚意出售,欢迎有意向者咨询。
-
小区配套问经纪人
位置:小区地理位置佳,绿化率高,居民素质高 配套:有健身器材,小型篮球场,可供小区居民使用 车位:停车位充足,建有地上停车场和地下车库 保安:小区内24保安巡逻
-
服务介绍问经纪人
本人从事房地产多年,公司有大量好房源,欢迎进入我的店铺查看,欢迎随时电话咨询,相信我的专业,为您置业安家保驾护航。
周边配套
交通综合评分
查看全部超过重庆86.5%的小区
-
地铁公交
10.0
-
驾车出行
10.0
本月均价 9517元/m²
环比上月 下跌 5%
同比去年 下跌 5.55%
猜你喜欢
同小区其它房源
户型齐全,主打户型方正,明厨,明卫,主卧朝南二居
东海长洲户型主要有41平-91平的户型方正,明厨,明卫,主卧朝南的二居 、43平-127平的户型方正,双阳台的三居 、41平-67平的户型方正,明卫的一居 。
*获取完整户型报告,同时会有免费语音讲解服务
-
10934元/㎡
本月挂牌均价
-
1.21%
环比上月
买房加房产交流群,省钱不踩雷
3000+人正在热聊
- 免费咨询
- 专业服务
- 区域解读
- 户型分析

