大渡口区 中绿江州C区 四房
-
129万
总价
-
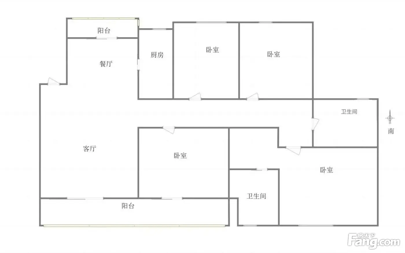
4室2厅2卫
户型
-
138.24㎡
建筑面积
买房加房产交流群,省钱不踩雷
3000+人正在热聊
-
单价
9332元/平米
- 挂牌价格解析
-
楼层
顶层/9层
- 咨询楼层
-
套内
暂无数据
- 咨询套内使用面积
-
楼型
板楼
-
朝向
南
-
装修
精装修
-
年代
2020
-
发布
2025-10-13
-
咨询总首付
首付约33.3万
首付税费及佣金情况 -
深度测评
小区中绿江州(大渡口-九宫庙)
-
更多
楼户比、楼层高度、交易历史、抵押信息
房源描述(1)
-
核心卖点问经纪人
相信为您推荐的这套房子您一定会满意,赶快行动吧,先到先得! 房屋年代∶null,面积∶138.24平方米,朝向∶南 1. 小区配备高端物业管理,让你享受宾至如归的服务; 2. 小区人文素质高,是您的居家的绝佳选择; 3. 小区居住安静舒适,让您拥有高品质的生活环境; 4. 小区绿化率高,绿树成荫鸟语花香让您随时呼吸到新鲜空气。
-
业主心态问经纪人
房东置换,诚心出售,价格可以再谈,欢迎看房,随时恭候。
-
小区配套问经纪人
位置:小区地理位置佳,绿化率高,居民素质高 配套:有健身器材,小型篮球场,可供小区居民使用 车位:停车位充足,建有地上停车场和地下车库 保安:小区内24保安巡逻
-
服务介绍问经纪人
本人从事房地产多年,公司有大量好房源,欢迎进入我的店铺查看,欢迎随时电话咨询,相信我的专业,为您置业安家保驾护航。
周边配套
交通综合评分
查看全部超过重庆0.0%的小区
-
地铁公交
10.0
-
驾车出行
10.0
本月均价 10734元/m²
环比上月 下跌 0.11%
同比去年 上涨 6.85%
猜你喜欢
同小区其它房源
户型齐全,主打全明格局,户型方正三居
中绿江州户型主要有86平-116平的全明格局,户型方正的三居 、115平-138平的全明格局,户型方正的四居 。
*获取完整户型报告,同时会有免费语音讲解服务
-
7063元/㎡
本月挂牌均价
-
0.79%
环比上月
买房加房产交流群,省钱不踩雷
3000+人正在热聊
- 免费咨询
- 专业服务
- 区域解读
- 户型分析

