照母山轻轨别墅。康桥融府 四房 335万 业主急售 房源保真
-
335万
总价
-
2室2厅3卫
户型
-
143.18㎡
建筑面积
买房加房产交流群,省钱不踩雷
3000+人正在热聊
-
单价
23397元/平米
- 挂牌价格解析
-
楼层
3层
- 咨询楼层
-
套内
暂无数据
- 咨询套内使用面积
-
楼型
独栋
-
朝向
南
-
装修
毛坯
-
年代
2019
-
发布
2025-10-01
-
地铁
距5号线湖霞街站约390米
-
咨询总首付
首付约83.5万
首付税费及佣金情况 -
深度测评
小区康桥融府别墅(两江新区-照母山)
-
更多
楼户比、楼层高度、交易历史、抵押信息
房源描述(1)
-
核心卖点问经纪人
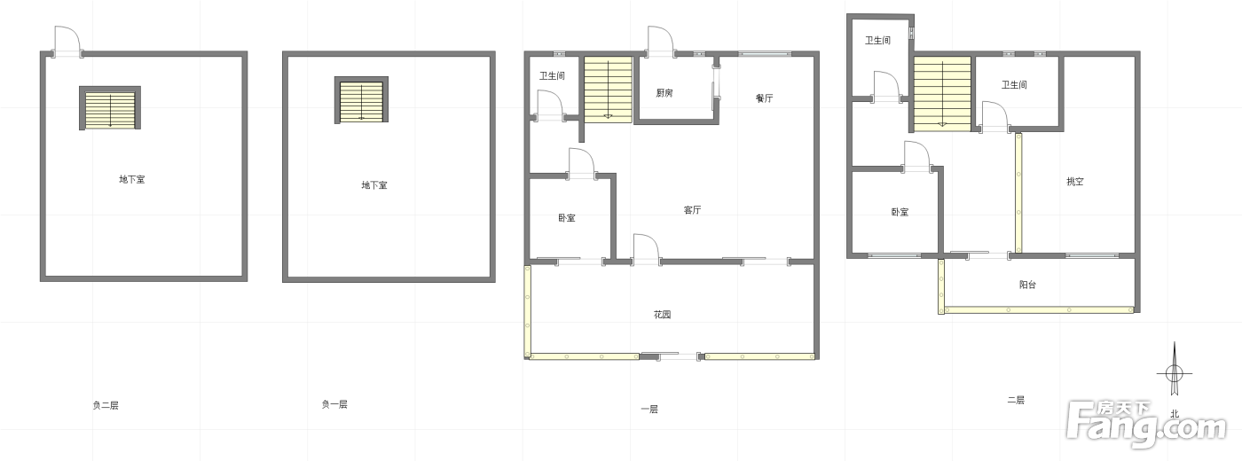
康桥融府别墅位于重庆渝北照母山两江新区核心地段,紧邻蓝湖郡高端住宅区,地理位置优越。这套2019年建成的南向别墅,建筑面积143.18平米,地上三层设计,毛坯状态给予业主充分的个性化装修空间。作为满五房源,交易税费优势明显,总价335万,单价仅23397元/平米,在同类别墅产品中具有较高性价比。 该别墅采用2室2厅3卫的实用布局,配备1个阳台,空间规划合理。南向朝向确保室内采光充足,三层结构设计满足不同生活场景需求。所在小区环境优美,周边配套成熟,是追求品质生活人士的理想选择。毛坯状态既适合自住装修,也为投资者提供了灵活的选择空间。
-
业主心态问经纪人
1.产权清晰,无纠纷。 2.此房源为二手房,业主诚心出售,价格好商量。 3.看房不收取任何费用。 4.本人专注二手和一手新房,希望能为您的置业提供帮助。电话(同号)
-
小区配套问经纪人
1.小区带书包。 2.轻轨5号线,公交线路丰富。开车到欢乐谷3,到汽博中心5。 3.开车到礼嘉儿童医院10,到金山医院3。到重庆市人民医院10。 小区环境优美,配套成熟,周边交通便利,居住舒适。 小区地理位置俱佳,绿化,容积率大 小区内配套设施齐全,篮球场,网球场,羽毛球场老人活动中心,儿童游乐中心等。
-
服务介绍问经纪人
我司服务理念:客户至上,阳光交易,真诚服务客户。 作为一名经纪人,真诚接待客户,专业服务,免费咨询,房源匹配精准,让客户便捷无忧! 我是小陈期待你的来电,我将会热情接听,为你传达你想了解的每一个细节。
-
税费分析房贷计算
二手房:个人所得税1% 首套:契税:140平以下:1%;140平以上1.5%。 二套:契税:140平以上:1%;140平以上2% 三套及以上:契税:3%
-
户型解读问经纪人
相信为您推荐的这套房子您一定会满意,赶快行动吧,先到先得! 房屋年代∶null,面积∶143.18平方米,朝向∶ 1. 小区配备高端物业管理,让你享受宾至如归的服务; 2. 小区人文素质高,是您的居家的绝佳选择; 3. 小区居住安静舒适,让您拥有高品质的生活环境; 4. 小区绿化率高,绿树成荫鸟语花香让您随时呼吸到新鲜空气。
周边配套
交通综合评分
查看全部超过重庆57.5%的小区
-
地铁公交
10.0
-
驾车出行
10.0
猜你喜欢
同小区其它房源
户型齐全,主打明卫,明厨三居
康桥融府别墅户型主要有75平-141平的明卫,明厨的三居 、103平-145平的户型方正,明卫,明厨,客厅朝南,全明格局,双卧朝南,主卧朝南的四居 、47平-75平的明卫,客厅朝南的二居 。
*获取完整户型报告,同时会有免费语音讲解服务
-
19419元/㎡
本月挂牌均价
-
0.06%
环比上月
买房加房产交流群,省钱不踩雷
3000+人正在热聊
- 免费咨询
- 专业服务
- 区域解读
- 户型分析

