渝中双钢路南向一居 满二精装中层 总价95万
-
95万
总价
-
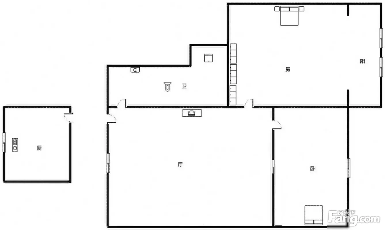
1室1厅1卫
户型
-
48.72㎡
建筑面积
买房加房产交流群,省钱不踩雷
3000+人正在热聊
-
单价
19499元/平米
- 挂牌价格解析
-
楼层
底层/13层
- 咨询楼层
-
套内
暂无数据
- 咨询套内使用面积
-
楼型
板楼
-
朝向
南
-
装修
中装修
-
年代
1990
-
发布
2025-09-23
-
地铁
距1号线七星岗站约377米
-
咨询总首付
首付约25.1万
首付税费及佣金情况 -
深度测评
小区双钢路小区(渝中-一号桥)
-
更多
楼户比、楼层高度、交易历史、抵押信息
房源描述(1)
-
核心卖点问经纪人
该房源位于渝中区双钢路小区,是小學的划片区域,满足三对口政策可就,是1990年建成的住宅项目,总高13层,本套房源位于中层位置。房屋建筑面积48.72平方米,采用1室1厅1卫1厨1阳台的实用格局,南向朝向保证了良好的采光条件。目前房本已满两年,交易税费较低。 这套一居室采用中装修标准,整体维护状况良好,可直接入住。单价19499元/平,总价95万,在渝中核心区域具有较高的性价比。小区地理位置优越,周边生活配套成熟,交通便利,适合单身人士或小家庭居住。
-
业主心态问经纪人
房东置换,诚心出售,价格可以再谈,欢迎看房,随时恭候。
-
小区配套问经纪人
交通配套:轨道10号线,二号线均在5内,公交车站遍布,交通便利,出行方便。配套:,高中,初中,均在附近,兴趣,爱好,托管机构多,氛围浓厚。生活配套:批发菜市场,杭商华联超市(在建),惠利优选超市在10内;工行,建行,农行,中国银行均在此区域有服务点;还有电影院,公园等休闲娱乐场所。
-
服务介绍问经纪人
本人从事房地产多年,公司有大量好房源,欢迎进入我的店铺查看,欢迎随时电话咨询,相信我的专业,为您置业安家保驾护航。
周边配套
交通综合评分
查看全部超过重庆33.0%的小区
-
地铁公交
10.0
-
驾车出行
10.0
本月均价 18510元/m²
环比上月 下跌 0.62%
同比去年 下跌 3.01%
猜你喜欢
同小区其它房源
-
14913元/㎡
本月挂牌均价
-
0.04%
环比上月
买房加房产交流群,省钱不踩雷
3000+人正在热聊
- 免费咨询
- 专业服务
- 区域解读
- 户型分析

