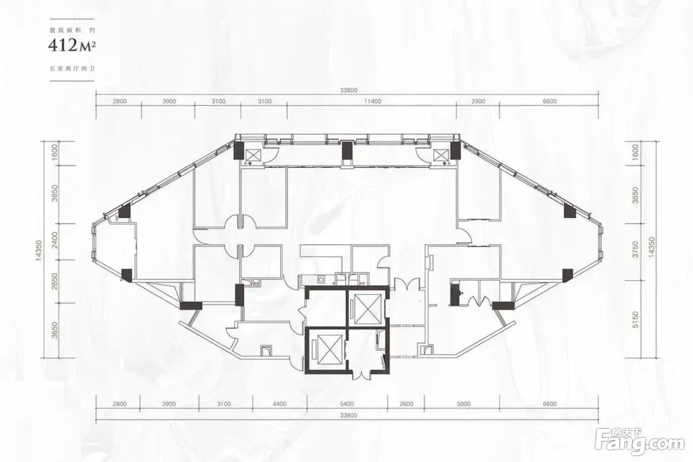
重庆中心 5室2厅4卫 精装修 966万元
-
966万
总价
-
5室2厅4卫
户型
-
412.34㎡
建筑面积
买房加房产交流群,省钱不踩雷
3000+人正在热聊
-
单价
23427元/平米
- 挂牌价格解析
-
楼层
底层/60层
- 咨询楼层
-
套内
暂无数据
- 咨询套内使用面积
-
楼型
板楼
-
朝向
东南
-
装修
精装修
-
年代
2019
-
发布
2025-09-18
-
地铁
距1号线两路口站约171米
-
咨询总首付
首付约321.6万
首付税费及佣金情况 -
深度测评
小区重庆中心(渝中-两路口)
-
更多
楼户比、楼层高度、交易历史、抵押信息
房源描述(1)
-
核心卖点问经纪人
1、重庆,一个城市、一个,以城市为名的建筑也就五个(重庆、天津、上海、苏州、温州) 2、区位:388米天际线、60层现代化摩天大楼、城奢华豪宅的金字塔。 2、智能:微软AI系统,机器人小薇、维拉和魔镜系统、语音控制,开启城市现代化的智能家居生活。 3、物业:提供美国拉斯维加斯和澳门私人服、预定国内国际顶厨师、预约各个领域的顶医疗服。 4、面积:143㎡、193㎡(6~47层)、412㎡(48~60层)、190~330㎡(3个跃层)、1236.18㎡(整层)。
-
业主心态问经纪人
【1】、本房源为开发商一手房源,新房不收取任何费用,直接与开发商签订合同。【2】、全程接送,陪同看房,买房是大事,实地考察很重要。【3】、有更多的房源供您参考:我珍视每一份嘱托,不发布虚假房源、不虚报价格、不吃差价。【4】、如果您自己到售楼部去看房,将失去更多的选择,我的存在是在为你选择适合您的房源。
-
小区配套问经纪人
1·小区环境:优雅小区,安静优雅,小区绿化较好,带有休闲设施,可在小区花园游玩,十有情调。2·交通便利:交通配套完善,轨道交通和道路交通都有。房子周边就有公交站,多条公交线路。3·生活便利:小区设有商铺,合理布便利市,购买生活用品及买菜十分便利。4·车位配套:停车位,建有地上停车场和地下车库。5·安保配套:小区内24保安巡逻。进出口大门均设门卫。保障居民安全。
-
服务介绍问经纪人
本人从事房地产多年,公司有大量好房源,欢迎进入我的店铺查看,欢迎随时电话咨询,相信我的专业,为您置业安家保驾护航。
-
税费分析房贷计算
1、此房为新房,无中介费 2、相关税费均为国家征收标准 ①税 征收标准为总房款的3% ②大修基金 建筑面积×80(电梯房)建筑面积×50(楼梯房) ③5元一本的贷款合同公证费 ④权证登记费450元 ⑤首付款根据个人情况而定。
周边配套
交通综合评分
查看全部超过重庆1.1%的小区
-
地铁公交
10.0
-
驾车出行
10.0
本月均价 17483元/m²
环比上月 下跌 3.18%
同比去年 下跌 4.54%
猜你喜欢
同小区其它房源
-
9236元/㎡
本月挂牌均价
-
1.41%
环比上月
买房加房产交流群,省钱不踩雷
3000+人正在热聊
- 免费咨询
- 专业服务
- 区域解读
- 户型分析


