端户别墅,单层180平米 首钢美利山 次新精装别墅急售
-
490万
总价
-
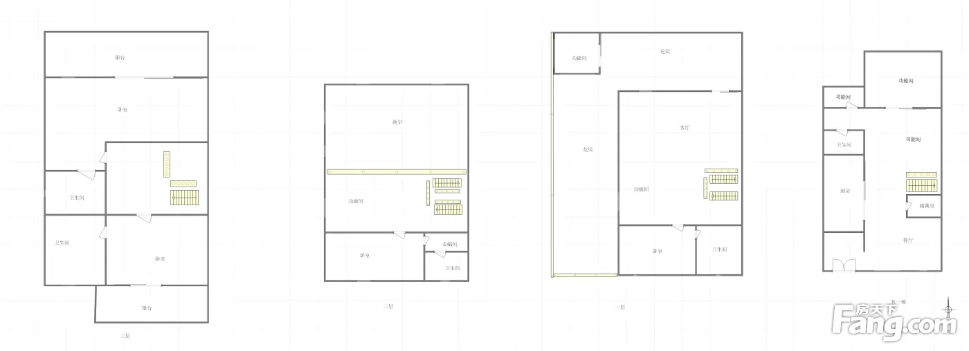
5室2厅4卫
户型
-
248.97㎡
建筑面积
买房加房产交流群,省钱不踩雷
3000+人正在热聊
加入群聊
-
单价
19681元/平米
- 挂牌价格解析
-
楼层
1层
- 咨询楼层
-
套内
暂无数据
- 咨询套内使用面积
-
楼型
独栋
-
朝向
东
-
装修
精装修
-
发布
2025-09-12
-
地铁
距3号线园博园站约848米
-
咨询总首付
首付约163.5万
首付税费及佣金情况 -
深度测评
小区首钢美利山别墅(两江新区-汽博中心)
-
更多
楼户比、楼层高度、交易历史、抵押信息
房源描述(1)
周边配套
地址:经开区北区翠渝路55号(金开大道和金兴大道交界处)
交通综合评分
查看全部4.0
“一般”
超过重庆33.5%的小区
-
地铁公交
10.0
猜你喜欢
同小区其它房源
户型齐全,主打明卫,客厅朝南,主卧朝南五居
首钢美利山别墅户型主要有246平-602平的明卫,客厅朝南,主卧朝南的五居 、241平-345平的户型方正的四居 、398平-630平的户型方正,独立衣帽间,明卫的其他居 。
*获取完整户型报告,同时会有免费语音讲解服务
-
15323元/㎡
本月挂牌均价
-
2.24%
环比上月
买房加房产交流群,省钱不踩雷
3000+人正在热聊
加入群聊
- 免费咨询
- 专业服务
- 区域解读
- 户型分析
免责声明:房源信息由网站用户提供,其真实性、合法性由信息提供者负责,最终以政府部门登记备案为准。本网站不声明或保证内容之正确性和可靠性,购买该房屋时,请谨慎核查。入学情况仅凭历史经验总结,在此不承诺升学事宜。请您在签订合同之前,切勿支付任何形式的费用,以免上当受骗。


