沙坪坝区 俊峰香格里拉 四房 298万
-
298万
总价
-
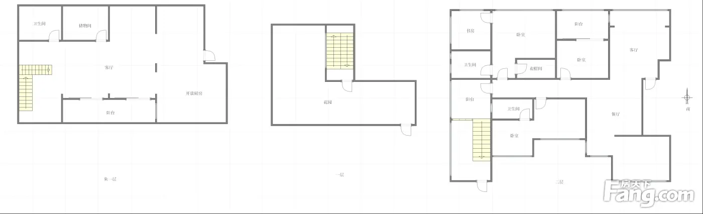
4室2厅2卫
户型
-
273.53㎡
建筑面积
买房加房产交流群,省钱不踩雷
3000+人正在热聊
-
单价
10895元/平米
- 挂牌价格解析
-
楼层
低层/6层
- 咨询楼层
-
套内
暂无数据
- 咨询套内使用面积
-
楼型
板楼
-
朝向
南
-
装修
豪华装修
-
发布
2025-11-24
-
地铁
距1号线石井坡站约716米
-
咨询总首付
首付约90.5万
首付税费及佣金情况 -
深度测评
小区俊峰香格里拉(沙坪坝-磁器口)
-
更多
楼户比、楼层高度、交易历史、抵押信息
房源描述(1)
-
核心卖点问经纪人
相信为您推荐的这套房子您一定会满意,赶快行动吧,先到先得! 房屋年代∶null,面积∶273.53平方米,朝向∶南 1. 小区配备高端物业管理,让你享受宾至如归的服务; 2. 小区人文素质高,是您的居家的绝佳选择; 3. 小区居住安静舒适,让您拥有高品质的生活环境; 4. 小区绿化率高,绿树成荫鸟语花香让您随时呼吸到新鲜空气。
周边配套
交通综合评分
查看全部超过重庆58.4%的小区
-
地铁公交
10.0
-
驾车出行
10.0
本月均价 14521元/m²
环比上月 下跌 0.1%
同比去年 下跌 7.46%
猜你喜欢
同小区其它房源
户型齐全,主打户型方正,动静分离,高附赠空间三居
俊峰香格里拉户型主要有91平-148平的户型方正,动静分离,高附赠空间的三居 、109平-289平的户型方正,动静分离的四居 、146平-260平的户型方正,动静分离,带露台,入户花园的五居 。
*获取完整户型报告,同时会有免费语音讲解服务
-
9779元/㎡
本月挂牌均价
-
1.63%
环比上月
买房加房产交流群,省钱不踩雷
3000+人正在热聊
- 免费咨询
- 专业服务
- 区域解读
- 户型分析

