渝北央企联排别墅端户3+1结构 大花园带三车位
-
280万
总价
-
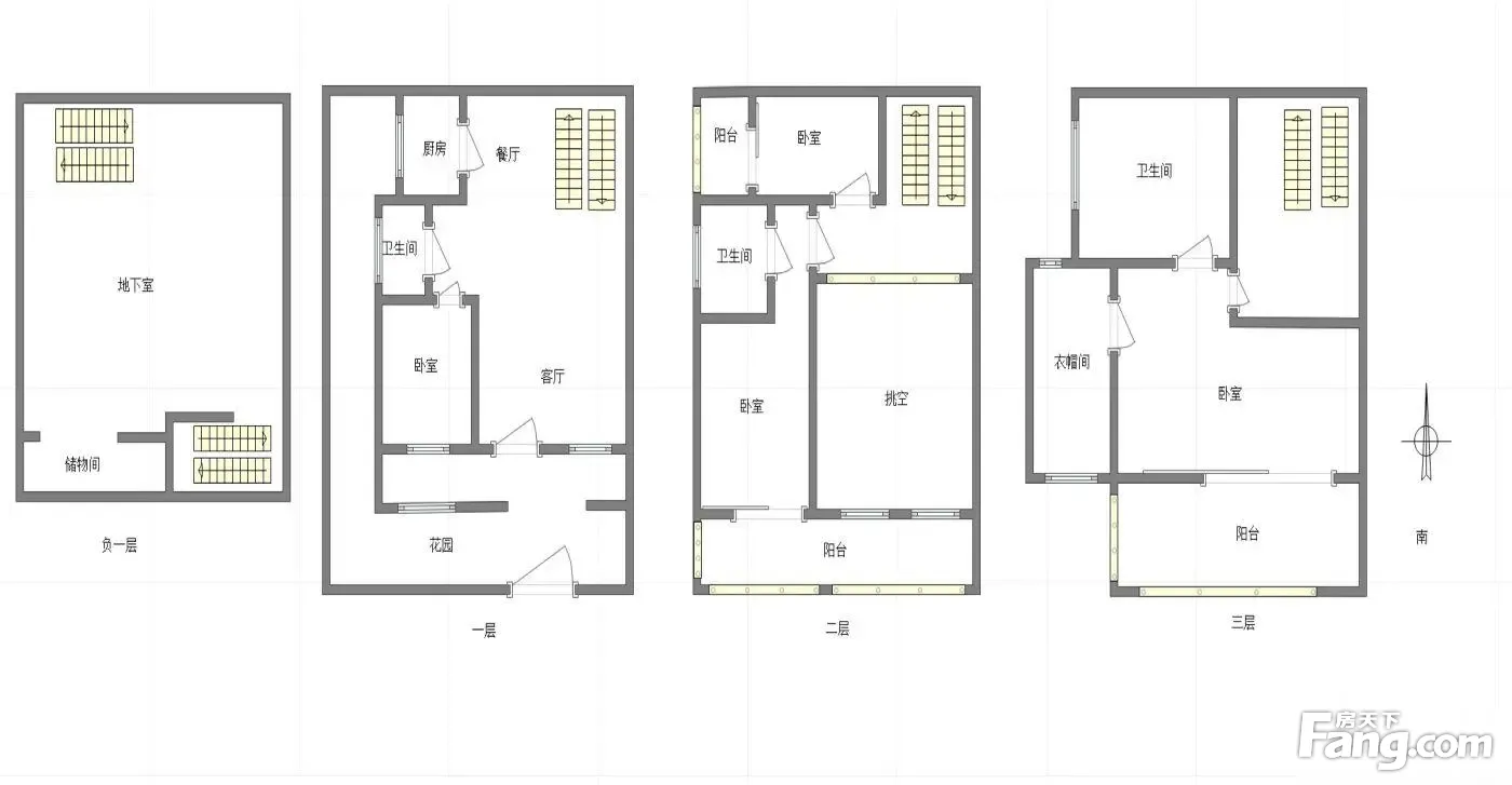
4室2厅2卫
户型
-
249.34㎡
建筑面积
买房加房产交流群,省钱不踩雷
3000+人正在热聊
-
单价
11230元/平米
- 挂牌价格解析
-
楼层
4层
- 咨询楼层
-
套内
暂无数据
- 咨询套内使用面积
-
楼型
独栋
-
朝向
南
-
装修
精装修
-
年代
2025
-
发布
2025-06-29
-
地铁
暂无数据
-
咨询总首付
首付约84.3万
首付税费及佣金情况 -
深度测评
小区华侨城天澜美墅(两江新区-礼嘉)
-
更多
楼户比、楼层高度、交易历史、抵押信息
房源描述(1)
-
核心卖点问经纪人
面积∶249.34平方米,朝向∶南 商场四大商圈:礼嘉国际商务区,龙湖源著天街,金州商圈,约克郡光环商圈 商超:重百新世纪、越界国际影城、财富购物中心、星汇两江购物中心、星怡广场 周边景观:嘉陵江、九曲河湿地、照母山 周边公园:金海湾嘉陵江江岸公园、九曲河湿地公园、欢乐谷、玛雅水公园、照母山森林公园、竹林公园 周边医院:重庆医科大学儿童医院礼嘉分院、两江新华国际医院、重庆市中医院、金山医院、重庆人民医院 生活配套:大门口社区底商,向南3KM礼嘉18万方天街,江岸沿线大竹林14KM无缝连接金海湾滨江公园适合野炊跑步。
-
业主心态问经纪人
此房业主安心出售,诚心委托代卖,没有经济纠纷。不如实地看房,电话24为您开机。真实有效本房价为业主目前真实底价,绝无少报多报等虚假信息,请大家共同监督本人将对来电电话号码提供保密服务,以避免过多陌生电话给您带来的不必要麻烦.
-
小区配套问经纪人
商场四大商圈:礼嘉国际商务区,龙湖源著天街,金州商圈,约克郡光环商圈商超:重百新世纪、越界国际影城、财富购物中心、星汇两江购物中心、星怡广场周边景观:嘉陵江、九曲河湿地、照母山周边公园:金海湾嘉陵江江岸公园、九曲河湿地公园、欢乐谷、玛雅水公园、照母山森林公园、竹林公园周边医院:重庆医科大学儿童医院礼
-
服务介绍问经纪人
本人从事房地产多年,公司有大量好房源,欢迎进入我的店铺查看,欢迎随时电话咨询,相信我的专业,为您置业安家保驾护航。
周边配套
交通综合评分
查看全部超过重庆72.4%的小区
-
地铁公交
10.0
-
驾车出行
9.0
-
15401元/㎡
本月挂牌均价
-
0.71%
环比上月
买房加房产交流群,省钱不踩雷
3000+人正在热聊
- 免费咨询
- 专业服务
- 区域解读
- 户型分析

