解放碑 豪宅 新盘 高品质 俯瞰全江景
-
1200万
总价
-
4室3厅4卫
户型
-
331㎡
建筑面积
买房加房产交流群,省钱不踩雷
3000+人正在热聊
-
单价
36254元/平米
- 挂牌价格解析
-
楼层
底层/9层
- 咨询楼层
-
套内
暂无数据
- 咨询套内使用面积
-
楼型
板楼
-
朝向
南
-
装修
精装修
-
年代
2023
-
发布
2025-06-12
-
地铁
距1号线较场口站约463米
-
咨询总首付
首付约360.4万
首付税费及佣金情况 -
深度测评
小区国浩18T(渝中-解放碑)
-
更多
楼户比、楼层高度、交易历史、抵押信息
房源描述(1)
-
核心卖点问经纪人
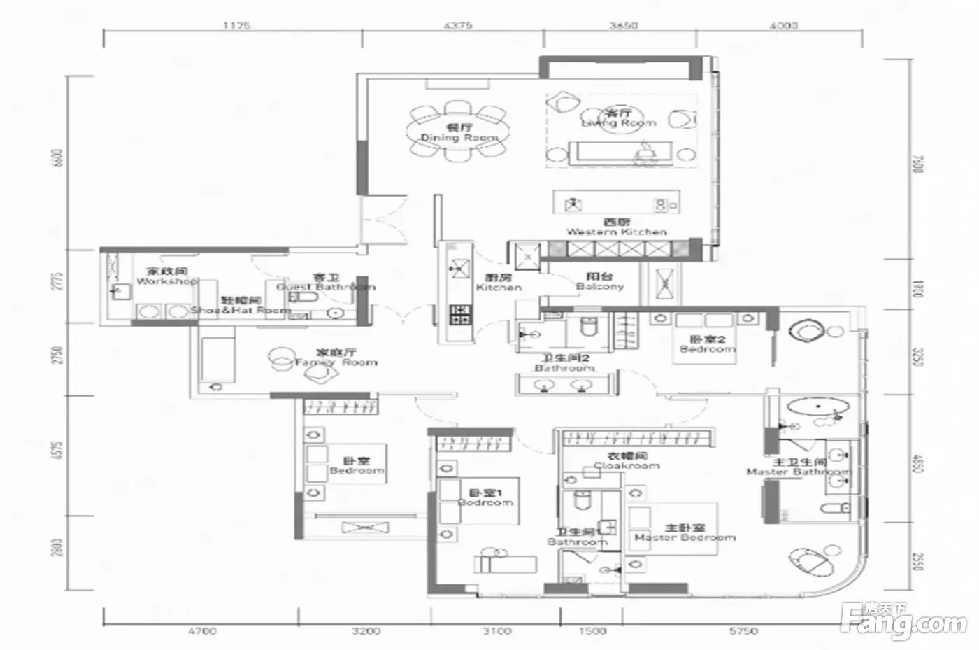
房屋介绍标准的4室3厅4卫(可参看户型图),全明格局。此房自从业主买后从未住过,相当于二手房的价格买了新房! 适合人群注重生活品质,享受生活,作风低调的成功人士;适合家庭:三口之家,三代同堂。 购买理由1。楼层虽低但无遮挡采光非常好 2。业主已做好随时出手准备,价格优势很大,投资也是相当不错的选择!3。买后从未住过,二手房的价格买新房。4。中央空调入户无外挂机。 选择我的理由1.不与业主站在一边搞双簧,坚决和我的客户同仇敌忾2.不胡乱分析市场促成交易,尽量让客户理性判断3.不过多电话造成生活干扰,合理安排时间进行服务4.不单纯只为成交而做成交,把可能存在的各种风险规避到底! 看见我的帖子是咱们的缘分,我会用我的努力为您服务,也希望您相信我的实力!本人为 资深置业顾问, 致力于提供专业的二手房服务!
-
业主心态问经纪人
房东置换,诚心出售,价格可以再谈,欢迎看房,随时恭候。
-
小区配套问经纪人
位置:小区地理位置佳,绿化率高,居民素质高 配套:有健身器材,小型篮球场,可供小区居民使用 车位:停车位充足,建有地上停车场和地下车库 保安:小区内24保安巡逻
-
服务介绍问经纪人
本人从事房地产多年,公司有大量好房源,欢迎进入我的店铺查看,欢迎随时电话咨询,相信我的专业,为您置业安家保驾护航。
周边配套
交通综合评分
查看全部超过重庆79.4%的小区
-
地铁公交
10.0
-
驾车出行
10.0
本月均价 26472元/m²
环比上月 上涨 0.21%
同比去年 下跌 8.75%
猜你喜欢
同小区其它房源
户型齐全,主打南北通透,全明格局三居
国浩·18T户型主要有145平-224平的南北通透,全明格局的三居 、303平-334平的全明格局,户型方正的四居 、111平-204平的全明格局,户型方正的二居 。
*获取完整户型报告,同时会有免费语音讲解服务
-
10885元/㎡
本月挂牌均价
-
1.21%
环比上月
买房加房产交流群,省钱不踩雷
3000+人正在热聊
- 免费咨询
- 专业服务
- 区域解读
- 户型分析


