寸滩 中国铁建西派城二期四房314.1万
-
307万
总价
-
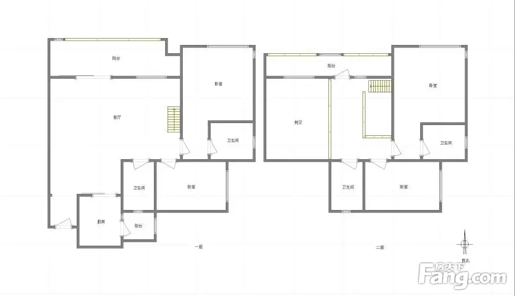
4室2厅4卫
户型
-
191.94㎡
建筑面积
买房加房产交流群,省钱不踩雷
3000+人正在热聊
-
单价
15995元/平米
- 挂牌价格解析
-
楼层
高层/40层
- 咨询楼层
-
套内
暂无数据
- 咨询套内使用面积
-
楼型
板楼
-
朝向
南
-
装修
简装修
-
年代
2020
-
发布
2025-08-18
-
地铁
距4号线头塘站约895米
-
咨询总首付
首付约102.7万
首付税费及佣金情况 -
深度测评
小区中国铁建西派城(江北-海尔路)
-
更多
楼户比、楼层高度、交易历史、抵押信息
房源描述(1)
-
核心卖点问经纪人
如何做到我的承诺: 一 从事房产事业多年丰富实战经验,可为您做到 置业。 二 此房或许不能使您达到100%的满意,但我会利用经验,使您买到合适、意愿的房子,让您 快的时间住进心意的房子。 三 秉承人 “我承诺,我做到”的工作精神。竭诚为 置业安家、投资旺财的朋友服务。 选择家,选择专家,选择!!! 房屋情况介绍: 1:业主诚意卖房,看房方便。2:超多大型的购物场所是您生活的保障。3:超低的价格为您辛苦的积蓄作个便捷的理财。4:各大正规饮食环境是您生活的保障。 特别提醒: 可能此房信息不够详细, 如有任何问题,我会详细、耐心的为您解答 如果此房您不满意, 请与我联系,我会根据 您的需求,当前市场价位,房产市场走势,给您推荐合适的社区,合适的房子。 顺祝您身体健康、工作顺利!!!
-
业主心态问经纪人
房东置换,诚心出售,价格可以再谈,欢迎看房,随时恭候。
-
小区配套问经纪人
位置:小区地理位置佳,绿化率高,居民素质高 配套:有健身器材,小型篮球场,可供小区居民使用 车位:停车位充足,建有地上停车场和地下车库 保安:小区内24保安巡逻
-
服务介绍问经纪人
本人从事房地产多年,公司有大量好房源,欢迎进入我的店铺查看,欢迎随时电话咨询,相信我的专业,为您置业安家保驾护航。
周边配套
交通综合评分
查看全部超过重庆4.7%的小区
-
地铁公交
9.0
-
驾车出行
10.0
本月均价 18474元/m²
环比上月 下跌 1.3%
同比去年 下跌 6.86%
猜你喜欢
同小区其它房源
买房加房产交流群,省钱不踩雷
3000+人正在热聊
- 免费咨询
- 专业服务
- 区域解读
- 户型分析


