房源维护人强推 北滨路必看好房 廊桥水岸大中庭四房 南北通透
-
170万
总价
-
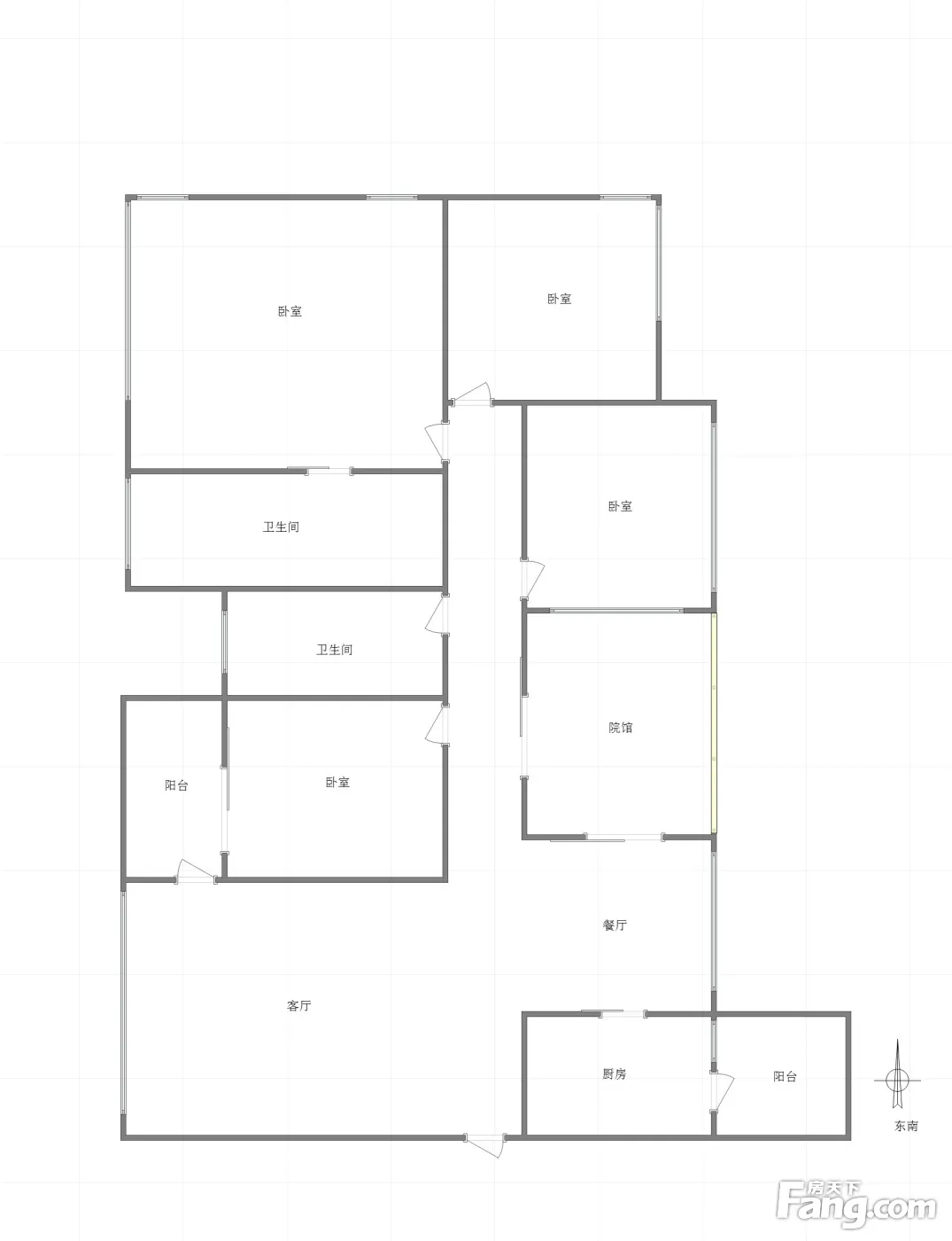
4室2厅2卫
户型
-
170.22㎡
建筑面积
买房加房产交流群,省钱不踩雷
3000+人正在热聊
-
单价
9987元/平米
- 挂牌价格解析
-
楼层
中层/33层
- 咨询楼层
-
套内
暂无数据
- 咨询套内使用面积
-
楼型
板楼
-
朝向
东南
-
装修
毛坯
-
发布
2025-04-02
-
地铁
距4号线头塘站约593米
-
咨询总首付
首付约51.1万
首付税费及佣金情况 -
深度测评
小区金科廊桥水岸(江北-海尔路)
-
更多
楼户比、楼层高度、交易历史、抵押信息
房源描述(1)
-
核心卖点问经纪人
相信为您推荐的这套房子您一定会满意,赶快行动吧,先到先得! 房屋年代∶2009,面积∶170.22平方米,朝向∶东南 1. 小区配备高端物业管理,让你享受宾至如归的服务; 2. 小区人文素质高,是您的居家的绝佳选择; 3. 小区居住安静舒适,让您拥有高品质的生活环境; 4. 小区绿化率高,绿树成荫鸟语花香让您随时呼吸到新鲜空气。
-
业主心态问经纪人
业主很信任我,我能了解业主卖房新的动态。目前市场交易量平稳,政策已经基本稳定,是市场触底入手的好时候。请不要错过性价比高的好房。
-
小区配套问经纪人
1.小区24安保巡逻,人脸识别,刷卡入户。 2.小区配备高端物业管理,让你享受宾至如归的服务 3.小区人文素质高,是您的居家的绝佳选择 4.小区居住安静舒适,让您拥有高品质的生活环境 5.小区绿化率高,绿树成荫鸟语花香让您随时呼吸到新鲜空气
-
服务介绍问经纪人
1:我期待为我的客户、提供高质服务。 2:给予客户以安心;我珍视每一份嘱托。 3:不发布虚假房源、不虚报价格、一心一意竭诚为您。 4:交易不成,费用全退。 谢谢您的本次浏览,祝您生活愉快!
-
税费分析房贷计算
佣.金:100w以内佣.金3666,100w以上佣.金6666. 建面140平以下: 首套契税1% 二套1%,三套及以上3% 建面140平以上:首套契税1.5%,二套2%,三套及以上3% 个人所得税1%或差额的20%,满五免征,
-
户型解读问经纪人
朝向:南,采光好,阳光充足,通风效果佳 1.小区配备高端物业管理,让你享受宾至如归的服务; 2.小区人文素质高,是您的居家的绝佳选择; 3.小区居住安静舒适,让您拥有高品质的生活环境; 4.小区绿化率高,绿树成荫鸟语花香让您随时呼吸到新鲜空气。
周边配套
交通综合评分
查看全部超过重庆64.1%的小区
-
地铁公交
10.0
-
驾车出行
10.0
本月均价 11731元/m²
环比上月 下跌 1.81%
同比去年 下跌 4.23%
猜你喜欢
同小区其它房源
户型齐全,主打户型方正,明卫,独立衣帽间,客厅朝南,双阳台,主卧朝南四居
金科廊桥水岸户型主要有140平-207平的户型方正,明卫,独立衣帽间,客厅朝南,双阳台,主卧朝南的四居 、105平-147平的户型方正,明厨,明卫,客厅朝南的三居 、74平-124平的户型方正,独立衣帽间,双阳台,双卧朝南的二居 。
*获取完整户型报告,同时会有免费语音讲解服务
买房加房产交流群,省钱不踩雷
3000+人正在热聊
- 免费咨询
- 专业服务
- 区域解读
- 户型分析

