光亮天润城南苑 4室1厅2卫 精装修 72万元
-
72万
总价
-
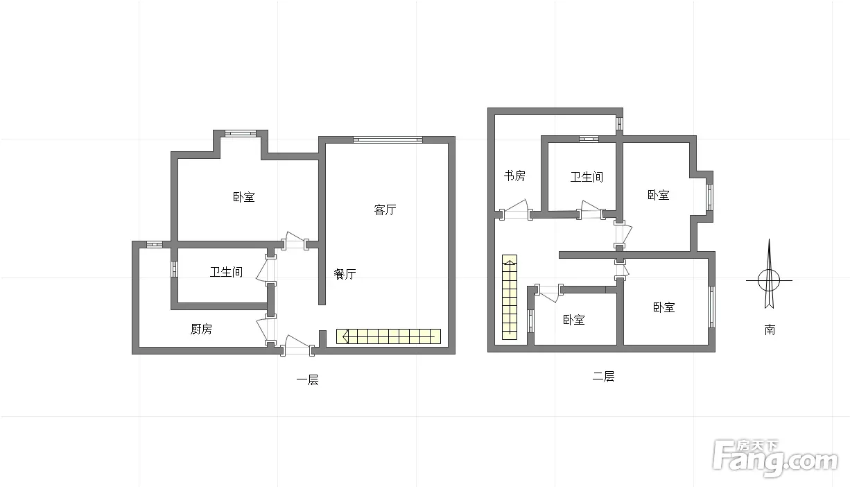
4室1厅2卫
户型
-
87.5㎡
建筑面积
买房加房产交流群,省钱不踩雷
3000+人正在热聊
-
单价
8229元/平米
- 挂牌价格解析
-
楼层
中层/32层
- 咨询楼层
-
套内
暂无数据
- 咨询套内使用面积
-
楼型
板楼
-
朝向
南
-
装修
精装修
-
年代
2019
-
发布
2024-09-13
-
地铁
距6号线龙凤溪约488米
-
咨询总首付
首付约17.6万
首付税费及佣金情况 -
深度测评
小区光亮天润城(北碚-城南新区)
-
更多
楼户比、楼层高度、交易历史、抵押信息
房源描述(1)
-
核心卖点问经纪人
为您找到梦想中的家。 我们珍视您的每一份嘱托,圆您家的梦想!我向您承诺:您所看到的房源全部真实有效,提前预约即可实地看房。欢迎随时来电咨询,我将竭诚为您服务! 稀缺房源,户型方正,格局紧凑,客厅挺大。 房间全新精装修,现代简约。 高层观景,视野,空气新鲜 产权清晰,看房提前预约即可,随时稳定可签。 了解更多请联系我!为您提供服务保证!
-
业主心态问经纪人
房东置换,诚心出售,价格可以再谈,欢迎看房,随时恭候。
-
小区配套问经纪人
位置:小区地理位置佳,绿化率高,居民素质高 配套:有健身器材,小型篮球场,可供小区居民使用 车位:停车位充足,建有地上停车场和地下车库 保安:小区内24保安巡逻
-
服务介绍问经纪人
本人从事房地产多年,公司有大量好房源,欢迎进入我的店铺查看,欢迎随时电话咨询,相信我的专业,为您置业安家保驾护航。
-
税费分析房贷计算
物业费2元到3元一平方。 购买新房主要税费: 契税:90平以内:1% ;90-124 平收1.5%;124平以上收2%(交房后地税收取) 注:以上收费仅供参考
周边配套
交通综合评分
查看全部超过重庆80.3%的小区
-
地铁公交
8.0
-
驾车出行
10.0
本月均价 8519元/m²
环比上月 下跌 1.5%
同比去年 下跌 10.58%
猜你喜欢
同小区其它房源
户型齐全,主打南北通透,全明格局,户型方正,动静分离,采光充足二居
光亮天润城户型主要有52平-119平的南北通透,全明格局,户型方正,动静分离,采光充足的二居 、74平-153平的南北通透,全明格局,户型方正,动静分离,采光充足的三居 、34平-88平的南北通透,户型方正,高附赠空间,采光充足的一居 。
*获取完整户型报告,同时会有免费语音讲解服务
-
7539元/㎡
本月挂牌均价
-
0.18%
环比上月
买房加房产交流群,省钱不踩雷
3000+人正在热聊
- 免费咨询
- 专业服务
- 区域解读
- 户型分析


