必买双露台顶跃洋房 证上145平,实🉐面积380平,错过无
-
160万元
总价
-
4室2厅2卫
户型
-
145.33㎡
建筑面积
买房加房产交流群,省钱不踩雷
3000+人正在热聊
加入群聊
-
单价
11009元/平米
- 挂牌价格解析
-
楼层
高层/9层
- 咨询楼层
-
套内
暂无数据
- 咨询套内使用面积
-
朝向
南
-
年代
2020
-
发布
2026-01-29
-
咨询总首付
首付约53.5万
首付税费及佣金情况 -
深度测评
小区光华安纳溪湖博望山(南岸-茶园新区)
-
更多
楼户比、楼层高度、交易历史、抵押信息
业主自评
-
落梅如雪乱605
加入房天下0天
接电时间:09:00-22:00
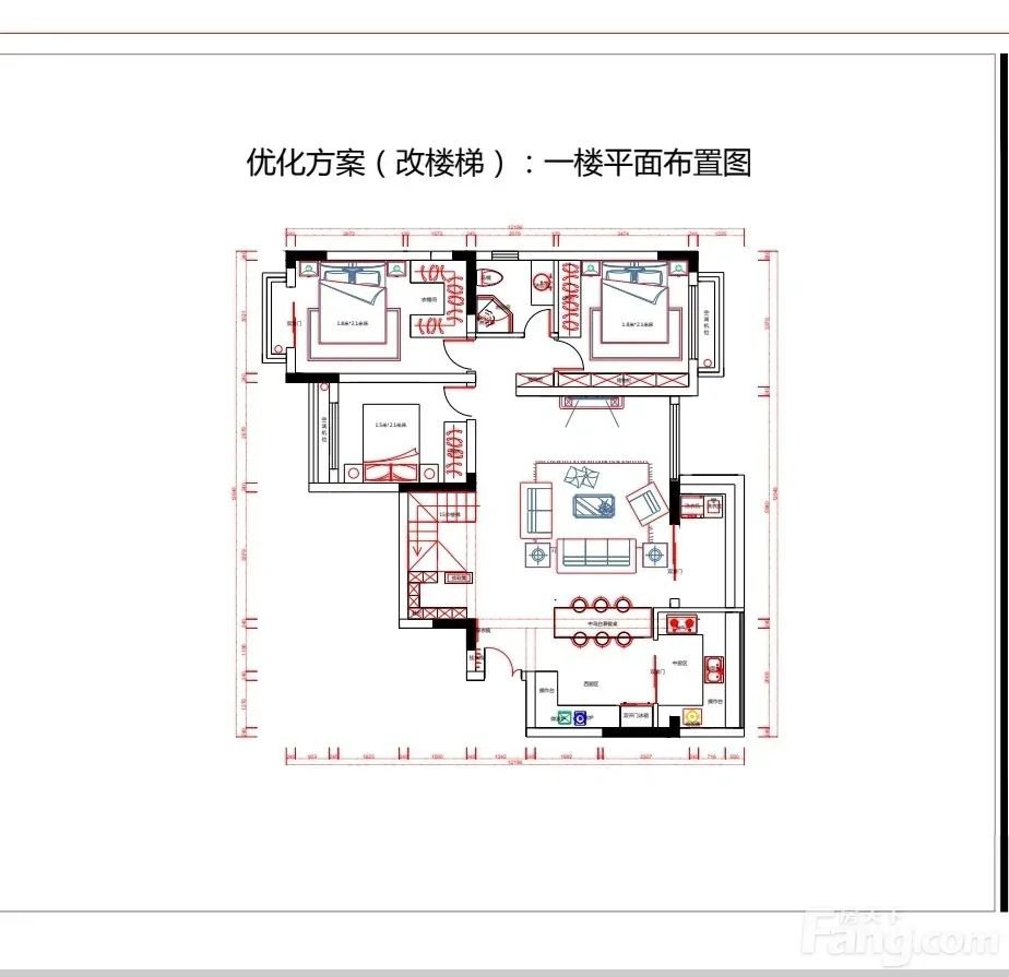
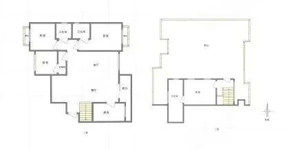
小孩婚房,由于上班地点换了,现诚心出售位于光华安纳溪湖博望山的花园洋房四居室,证上145平米,实🉐面积380平米的宽敞空间。南北通透的格局特别适合三代同堂的家庭居住。房子的亮点就是朝南的户型设计,阳光可以从早晒到晚。四个卧室都足够宽敞,两个卫生间都能做干湿分离,早上全家人洗漱也不用排队。客厅连着阳台,采光特别好,周末在大露台花园喝茶晒太阳特别惬意。小区环境是我们最舍不得的,绿化做得特别好,每天回家都像走进公园。物业也很负责,24小时都有人值班。周边生活配套很完善,步行范围内超市、菜市场、银行都有,生活特别方便。买价200多万,现在亏本卖160万,这个价格错过就没有了。看房非常方便密码锁,相信您会喜欢上这里的居住环境。
小孩婚房,由于上班地点换了,现诚心出售位于光华安纳溪湖博望山的花园洋房四居室,证上145平米,实🉐面积380平米的宽敞空间。南北通透的格局特别适合三代同堂的家庭居住。房子的亮点就是朝南的户型设计,阳光可以从早晒到晚。四个卧室都足够宽敞,两个卫生间都能做干湿分离,早上全家人洗漱也不用排队。客厅连着阳台,采光特别好,周末在大露台花园喝茶晒太阳特别惬意。小区环境是我们最舍不得的,绿化做得特别好,每天回家都像走进公园。物业也很负责,24小时都有人值班。周边生活配套很完善,步行范围内超市、菜市场、银行都有,生活特别方便。买价200多万,现在亏本卖160万,这个价格错过就没有了。看房非常方便密码锁,相信您会喜欢上这里的居住环境。
周边配套
地址:雷家桥路光华安纳溪湖博望山
本月均价 暂无均价
环比上月 持平
同比去年 持平 持平
-
10148元/㎡
本月挂牌均价
-
1.22%
环比上月
买房加房产交流群,省钱不踩雷
3000+人正在热聊
加入群聊
联系业主
免责声明:房源信息由网站用户提供,其真实性、合法性由信息提供者负责,最终以政府部门登记备案为准。本网站不声明或保证内容之正确性和可靠性,购买该房屋时,请谨慎核查。入学情况仅凭历史经验总结,在此不承诺升学事宜。请您在签订合同之前,切勿支付任何形式的费用,以免上当受骗。

