冉家坝核心地段精装三房 门口就是轻轨站和大商业 出脚相当便利
-
133万元
总价
-
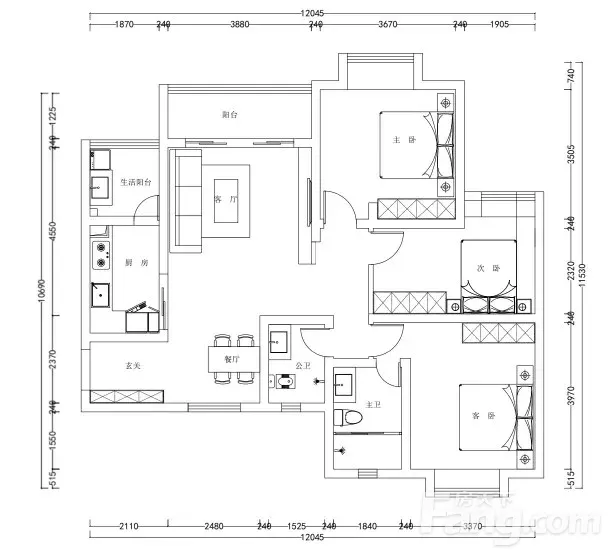
3室2厅2卫
户型
-
122㎡
建筑面积
买房加房产交流群,省钱不踩雷
3000+人正在热聊
加入群聊
-
单价
10902元/平米
- 挂牌价格解析
-
楼层
高层/31层
- 咨询楼层
-
套内
暂无数据
- 咨询套内使用面积
-
朝向
南
-
年代
2009
-
发布
2025-12-05
-
地铁
距5号线冉家坝站约479米
-
咨询总首付
首付约40.7万
首付税费及佣金情况 -
深度测评
小区橄榄郡(两江新区-冉家坝)
-
更多
楼户比、楼层高度、交易历史、抵押信息
业主自评
-
晓筑潘洪亮
加入房天下1744天
接电时间:09:00-22:00
这套房子在橄榄郡才翻新不久,要不是工作调动真舍不得卖。122平的三室两厅,每个房间都亮堂堂的,特别是主卧带个大飘窗,冬天晒太阳特别舒服。房子在小区中间位置,不临街特别安静。客厅连着阳台,晾衣服晒被子都方便。厨房是L型的,两个人一起做饭也不挤,储物柜做得特别多。三个卧室都方正,最小的那间现在当书房用,打了一整面墙的书柜。小区环境没得说,中央花园打理得很精致,晚饭后散步的人不少。物业挺负责,门禁一直管得严。附近超市菜场都有,步行五**能到公交站,生活特别便利。房子保养得很好,地板和墙面都重新弄过。这个价格在周边同户型里算实在的,要不是急着换城市真不会这么便宜卖。欢迎随时来看房,家里一直有人。
这套房子在橄榄郡才翻新不久,要不是工作调动真舍不得卖。122平的三室两厅,每个房间都亮堂堂的,特别是主卧带个大飘窗,冬天晒太阳特别舒服。房子在小区中间位置,不临街特别安静。客厅连着阳台,晾衣服晒被子都方便。厨房是L型的,两个人一起做饭也不挤,储物柜做得特别多。三个卧室都方正,最小的那间现在当书房用,打了一整面墙的书柜。小区环境没得说,中央花园打理得很精致,晚饭后散步的人不少。物业挺负责,门禁一直管得严。附近超市菜场都有,步行五**能到公交站,生活特别便利。房子保养得很好,地板和墙面都重新弄过。这个价格在周边同户型里算实在的,要不是急着换城市真不会这么便宜卖。欢迎随时来看房,家里一直有人。
周边配套
地址:龙山街道银桦路183号
交通综合评分
查看全部7.0
“较好”
超过重庆82.0%的小区
-
地铁公交
10.0
-
驾车出行
10.0
本月均价 10878元/m²
环比上月 下跌 0.73%
同比去年 下跌 6.6%
猜你喜欢
同小区其它房源
户型齐全,主打户型方正,明卫,双阳台三居
橄榄郡户型主要有75平-128平的户型方正,明卫,双阳台的三居 、63平-92平的明卫,明厨的二居 、105平-127平的户型方正,明厨,独立衣帽间,明卫,客厅朝南,全明格局的四居 。
*获取完整户型报告,同时会有免费语音讲解服务
买房加房产交流群,省钱不踩雷
3000+人正在热聊
加入群聊
联系业主
免责声明:房源信息由网站用户提供,其真实性、合法性由信息提供者负责,最终以政府部门登记备案为准。本网站不声明或保证内容之正确性和可靠性,购买该房屋时,请谨慎核查。入学情况仅凭历史经验总结,在此不承诺升学事宜。请您在签订合同之前,切勿支付任何形式的费用,以免上当受骗。

