风华苑 3室1厅 南
-
200万
总价
-
3室1厅
户型
-
125㎡
建筑面积
买房加房产交流群,省钱不踩雷
3000+人正在热聊
加入群聊
-
单价
16000元/平米
- 挂牌价格解析
-
楼层
高楼层/6层
- 咨询楼层
-
套内
暂无数据
- 咨询套内使用面积
-
楼型
板楼
-
朝向
南
-
装修
精装
-
供暖
自供暖
-
年代
2000
-
发布
2026-01-12
-
地铁
距1号线(科学城-韦家碾)桐梓林站约965米
-
咨询总首付
首付约49.7万
首付税费及佣金情况 -
深度测评
小区风华苑(武侯-桐梓林)
-
更多
楼户比、楼层高度、交易历史、抵押信息
-
核验码
20262190054
周边配套
地址:新光路7号(成都棕北联合中学附近)
交通综合评分
查看全部7.0
“较好”
超过成都84.7%的小区
-
地铁公交
10.0
-
驾车出行
10.0
本月均价 16931元/m²
环比上月 下跌 1.26%
同比去年 下跌 3.72%
猜你喜欢
同小区其它房源
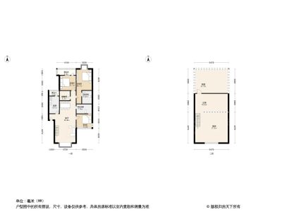
户型齐全,主打户型方正,客厅朝南,主卧朝南三居
风华苑户型主要有110平-269平的户型方正,客厅朝南,主卧朝南的三居 、138平-161平的明厨,明卫,客厅朝南,全明格局,双卧朝南,主卧朝南的四居 、102平-126平的明卫的二居 。
*获取完整户型报告,同时会有免费语音讲解服务
-
17483元/㎡
本月挂牌均价
-
0.45%
环比上月
买房加房产交流群,省钱不踩雷
3000+人正在热聊
加入群聊
免责声明:房源信息由网站用户提供,其真实性、合法性由信息提供者负责,最终以政府部门登记备案为准。本网站不声明或保证内容之正确性和可靠性,购买该房屋时,请谨慎核查。入学情况仅凭历史经验总结,在此不承诺升学事宜。请您在签订合同之前,切勿支付任何形式的费用,以免上当受骗。



