怡合苑二期 3室1厅 东南
-
70万
总价
-
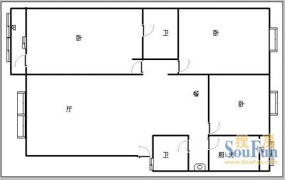
3室1厅
户型
-
117.44㎡
建筑面积
买房加房产交流群,省钱不踩雷
3000+人正在热聊
加入群聊
-
单价
5961元/平米
- 挂牌价格解析
-
楼层
高楼层/6层
- 咨询楼层
-
套内
110㎡
- 咨询套内使用面积
-
楼型
板塔结合
-
朝向
东南
-
装修
简装
-
供暖
暂无数据
-
年代
2005
-
发布
2025-08-08
-
咨询总首付
首付约18.6万
首付税费及佣金情况 -
深度测评
小区怡合苑二期(龙泉驿-滨河)
-
更多
楼户比、楼层高度、交易历史、抵押信息
-
核验码
20251814676
周边配套
地址:建材路128号
交通综合评分
查看全部6.2
“较好”
超过成都12.7%的小区
-
地铁公交
8.0
-
驾车出行
10.0
本月均价 6041元/m²
环比上月 下跌 2.39%
同比去年 下跌 5.2%
猜你喜欢
同小区其它房源
户型齐全,主打户型方正,明厨,客厅朝南三居
怡合苑二期户型主要有94平-94平的户型方正,明厨,客厅朝南的三居 、85平-85平的户型方正,明厨的二居 。
*获取完整户型报告,同时会有免费语音讲解服务
-
6680元/㎡
本月挂牌均价
-
0.34%
环比上月
买房加房产交流群,省钱不踩雷
3000+人正在热聊
加入群聊
免责声明:房源信息由网站用户提供,其真实性、合法性由信息提供者负责,最终以政府部门登记备案为准。本网站不声明或保证内容之正确性和可靠性,购买该房屋时,请谨慎核查。入学情况仅凭历史经验总结,在此不承诺升学事宜。请您在签订合同之前,切勿支付任何形式的费用,以免上当受骗。



