南北通透,中间楼层,保养如新,地暖,位置好,交通便利,近公园
-
2250万
总价
-
3室2厅2卫
户型
-
193㎡
建筑面积
买房加房产交流群,省钱不踩雷
3000+人正在热聊
加入群聊
-
单价
116580元/平米
- 挂牌价格解析
-
楼层
中楼层/17层
- 咨询楼层
-
套内
暂无数据
- 咨询套内使用面积
-
楼型
板楼
-
朝向
南北
-
装修
精装修
-
发布
2025-04-10
-
地铁
距3号线石佛营站约438米
-
咨询总首付
首付约744.8万
首付税费及佣金情况 -
深度测评
小区泛海国际(朝阳-朝阳公园)
-
更多
楼户比、楼层高度、交易历史、抵押信息
房源描述(5)
周边配套
地址:朝阳公园东侧东四环姚家园路
交通综合评分
查看全部7.8
“较好”
超过北京80.6%的小区
-
地铁公交
9.0
-
驾车出行
10.0
-
城际交通
4.0
本月均价 96840元/m²
环比上月 下跌 0.68%
同比去年 上涨 17.97%
猜你喜欢
同小区其它房源
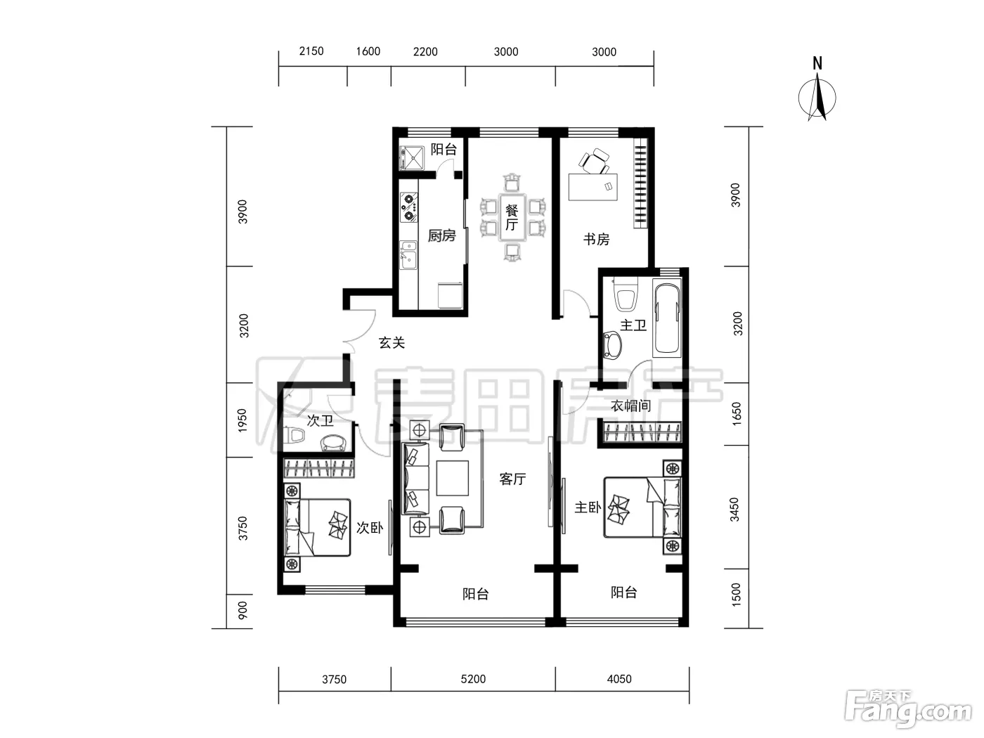
户型齐全,主打户型方正,独立衣帽间,明卫三居
泛海国际户型主要有178平-328平的户型方正,独立衣帽间,明卫的三居 、228平-322平的户型方正,明卫,双阳台的四居 、126平-246平的户型方正,明厨,明卫,独立衣帽间,客厅朝南,双阳台的二居 。
*获取完整户型报告,同时会有免费语音讲解服务
-
78695元/㎡
本月挂牌均价
-
1.43%
环比上月
买房加房产交流群,省钱不踩雷
3000+人正在热聊
加入群聊
- 免费咨询
- 专业服务
- 区域解读
- 户型分析
免责声明:房源信息由网站用户提供,其真实性、合法性由信息提供者负责,最终以政府部门登记备案为准。本网站不声明或保证内容之正确性和可靠性,购买该房屋时,请谨慎核查。入学情况仅凭历史经验总结,在此不承诺升学事宜。请您在签订合同之前,切勿支付任何形式的费用,以免上当受骗。



