丰台-科技园区】帝京花园 (独栋别墅)
-
1475万
总价
-
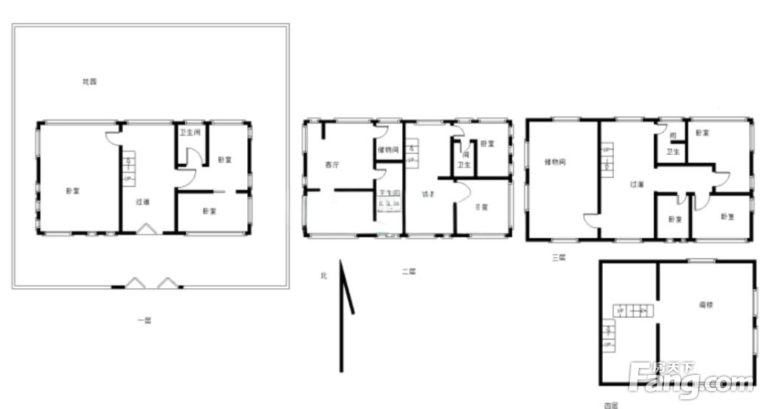
5室3厅7卫
户型
-
468.4㎡
建筑面积
买房加房产交流群,省钱不踩雷
3000+人正在热聊
加入群聊
-
单价
31490元/平米
- 挂牌价格解析
-
楼层
3层
- 咨询楼层
-
套内
暂无数据
- 咨询套内使用面积
-
楼型
独栋
-
朝向
北
-
装修
豪华装修
-
年代
2002
-
发布
2026-04-17
-
地铁
距9号线科怡路站约199米
-
咨询总首付
首付约488.5万
首付税费及佣金情况 -
深度测评
小区帝京花园别墅(丰台-科技园区)
-
更多
楼户比、楼层高度、交易历史、抵押信息
房源描述(1)
周边配套
地址:科技园区产业基地
交通综合评分
查看全部8.3
“较好”
超过北京84.8%的小区
-
地铁公交
10.0
-
驾车出行
10.0
-
城际交通
4.5
买房加房产交流群,省钱不踩雷
3000+人正在热聊
加入群聊
- 免费咨询
- 专业服务
- 区域解读
- 户型分析
免责声明:房源信息由网站用户提供,其真实性、合法性由信息提供者负责,最终以政府部门登记备案为准。本网站不声明或保证内容之正确性和可靠性,购买该房屋时,请谨慎核查。入学情况仅凭历史经验总结,在此不承诺升学事宜。请您在签订合同之前,切勿支付任何形式的费用,以免上当受骗。


