独门独院合院别墅(地上三层地下两层)(双车位)现房
-
630万
总价
-
6室4厅5卫
户型
-
251㎡
建筑面积
买房加房产交流群,省钱不踩雷
3000+人正在热聊
加入群聊
-
单价
25100元/平米
- 挂牌价格解析
-
楼层
4层
- 咨询楼层
-
套内
250㎡
- 咨询套内使用面积
-
楼型
独栋
-
朝向
南
-
装修
精装修
-
年代
2020
-
发布
2026-04-11
-
地铁
暂无数据
-
咨询总首付
首付约208.5万
首付税费及佣金情况 -
深度测评
小区燕西华府(丰台-云岗)
-
更多
楼户比、楼层高度、交易历史、抵押信息
房源描述(1)
-
核心卖点问经纪人
地理位置: 1.燕西华府位于丰台云岗,积聚人气,生活便利 2.小区内生活配套设施齐全 3.周边交通配套,公交车交通便捷,出行方便 房源概况: 1.房屋年代:2020年建的小区,环境优美,清爽干净 2.此房空间利用率非常大,高 3.房型方正,采光通风效果极佳 欢迎来电咨询、看房,常旭竭诚为您服服务
-
业主心态问经纪人
房东置换,诚心出售,可以再谈,欢迎看房,随时恭候。
-
小区配套问经纪人
小区地理位置佳,绿化环境优越整洁,居民素质高,物业管理完善,适宜居住
-
服务介绍问经纪人
本人做房产多年,一直本着专业的房产知识,为您服务,我会在短的时间内帮您买好满意的房子,不让您错失任何好房子,更不让您每天为买房的事烦心,欢迎随时拨打我电话。
-
税费分析房贷计算
关于本房的税费信息情况,请电话联系我,我将详细的为您讲解!
-
户型解读问经纪人
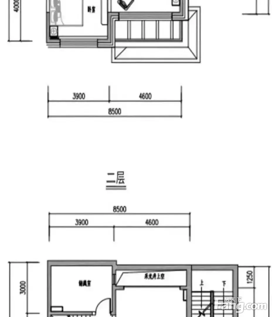
房屋拥有相对宽松的尺寸,布局通透,动静分离,设计豪华
周边配套
地址:泉湖西路1号院
猜你喜欢
同小区其它房源
-
30466元/㎡
本月挂牌均价
-
0.43%
环比上月
买房加房产交流群,省钱不踩雷
3000+人正在热聊
加入群聊
- 免费咨询
- 专业服务
- 区域解读
- 户型分析
免责声明:房源信息由网站用户提供,其真实性、合法性由信息提供者负责,最终以政府部门登记备案为准。本网站不声明或保证内容之正确性和可靠性,购买该房屋时,请谨慎核查。入学情况仅凭历史经验总结,在此不承诺升学事宜。请您在签订合同之前,切勿支付任何形式的费用,以免上当受骗。

