东兴第一社区2居一厅首付80多本人已实勘真实信息
-
176万
总价
-
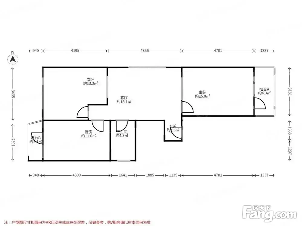
2室1厅1卫
户型
-
84.6㎡
建筑面积
买房加房产交流群,省钱不踩雷
3000+人正在热聊
-
单价
20804元/平米
- 挂牌价格解析
-
楼层
顶层/6层
- 咨询楼层
-
套内
83.6㎡
- 咨询套内使用面积
-
朝向
南北
-
装修
精装修
-
年代
1994
-
发布
2026-01-29
-
地铁
距15号线顺义站约509米
-
咨询总首付
首付约50.5万
首付税费及佣金情况 -
深度测评
小区东兴一区(顺义-顺义城)
-
更多
楼户比、楼层高度、交易历史、抵押信息
房源描述(1)
-
核心卖点问经纪人
1.房源优势:坐北朝南,位置安静,品质小区。 2.装修介绍:业主原来,精心设计,室内干净温馨。 3.户型正气:南北的户型、格局周正合理、无浪费面积。 4.采光充足:楼间距很大、无遮挡、采光非常棒。 5.地理位置:位于商业繁华地段。闹市中安静的家。
-
业主心态问经纪人
房东置换,诚心出售,可以谈,欢迎看房,随时恭候。
-
小区配套问经纪人
小区地理位置佳,绿化环境优越整洁,居民素质高,物业管理完善,适宜居住
-
服务介绍问经纪人
本人做房产多年,本着熟练的房产知识,为您服务,我会在短的时间内帮您找到满意的房子,不让您错失任何好房子,更不让您每天为房的事烦心,欢迎随时拨打我电话。
-
税费分析房贷计算
关于本房的税费信息情况,请电话联系我,我将详细的为您讲解!
-
户型解读问经纪人
房屋拥有相对宽松的尺寸,布局通透,动静分离,设计豪华
周边配套
交通综合评分
查看全部超过北京81.8%的小区
-
地铁公交
9.0
-
驾车出行
10.0
本月均价 26781元/m²
环比上月 下跌 3.5%
同比去年 下跌 11.11%
猜你喜欢
同小区其它房源
户型齐全,主打户型方正,明厨二居
东兴一区户型主要有49平-122平的户型方正,明厨的二居 、63平-143平的户型方正,明卫,客厅朝南,双阳台的三居 、50平-73平的户型方正,双阳台的一居 。
*获取完整户型报告,同时会有免费语音讲解服务
-
27531元/㎡
本月挂牌均价
-
1.24%
环比上月
买房加房产交流群,省钱不踩雷
3000+人正在热聊
- 免费咨询
- 专业服务
- 区域解读
- 户型分析


