2室1厅蓝堡国际公寓北区
-
1160万
总价
-
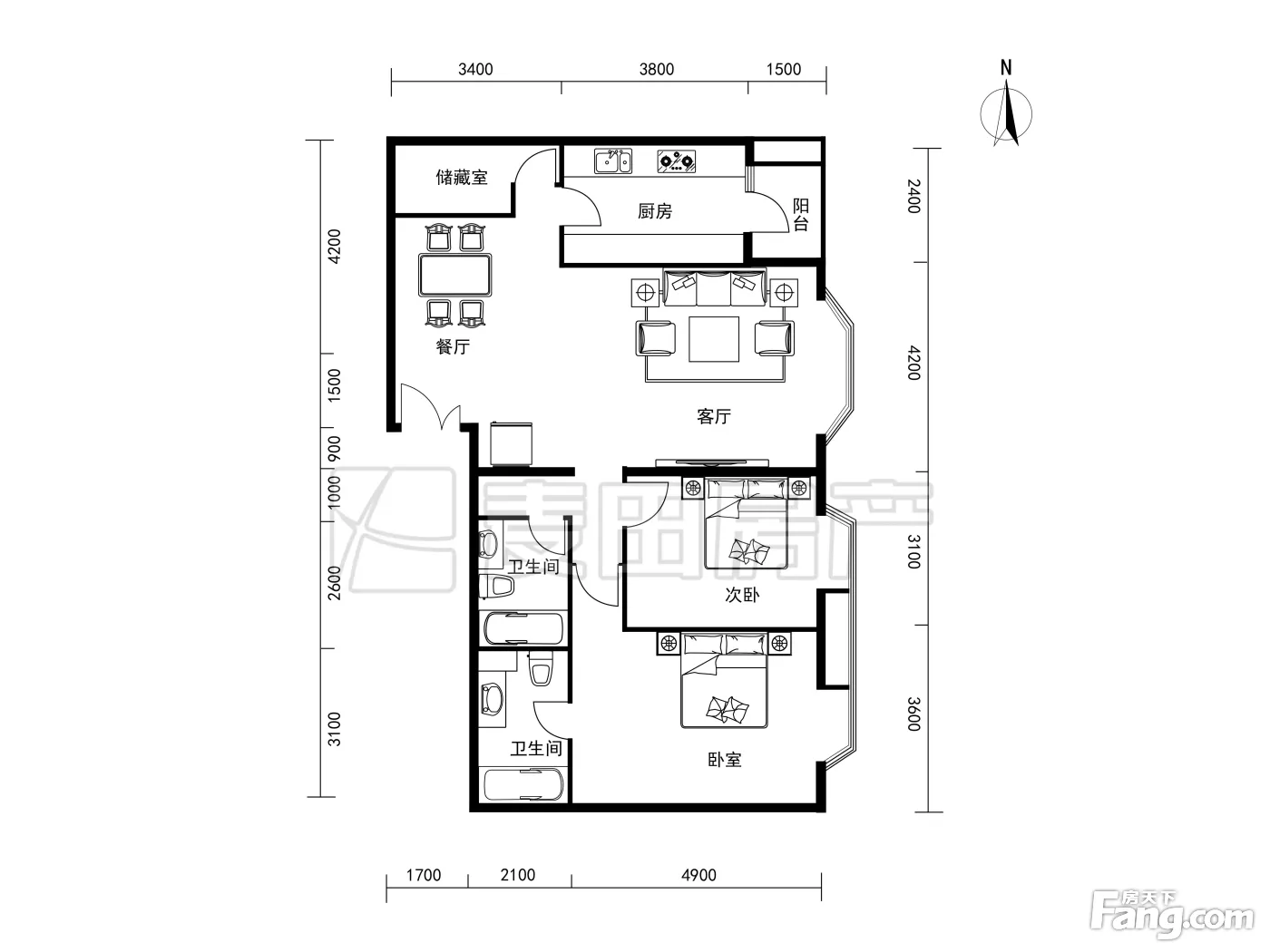
2室1厅2卫
户型
-
126㎡
建筑面积
买房加房产交流群,省钱不踩雷
3000+人正在热聊
-
单价
92063元/平米
- 挂牌价格解析
-
楼层
低层/19层
- 咨询楼层
-
套内
暂无数据
- 咨询套内使用面积
-
楼型
塔板结合
-
朝向
东
-
装修
精装修
-
年代
2004
-
发布
2026-04-09
-
地铁
距1号线(八通线)大望路站约320米
-
咨询总首付
首付约774.7万
首付税费及佣金情况 -
深度测评
小区蓝堡国际公寓(朝阳-大望路)
-
更多
楼户比、楼层高度、交易历史、抵押信息
房源描述(1)
-
核心卖点问经纪人
相信为您推荐的这套房子您一定会满意,赶快行动吧,先到先得! 房屋年代∶2004,面积∶126.0平方米,朝向∶东 1. 小区配备高端物业管理,让你享受宾至如归的服务; 2. 小区人文素质高,是您的居家的绝佳选择; 3. 小区居住安静舒适,让您拥有高品质的生活环境; 4. 小区绿化率高,绿树成荫鸟语花香让您随时呼吸到新鲜空气。
-
小区配套问经纪人
蓝堡国际公寓位于北京CBD核心区内,朝阳区西大望路3号·商业办公环境得天独厚。以蓝堡国际中心为基准划一个500米的圈,我们可以看到,中央电视台新址、北京电视中心都在这个圈里。从蓝堡国际中心向南不到300米,可以到达长安街延长线建国路上的地铁大望路站。
周边配套
交通综合评分
查看全部超过北京54.2%的小区
-
地铁公交
10.0
-
驾车出行
10.0
-
城际交通
4.5
本月均价 81276元/m²
环比上月 上涨 1.02%
同比去年 下跌 9.58%
猜你喜欢
同小区其它房源
户型齐全,主打客厅朝南,双卧朝南三居
蓝堡国际公寓户型主要有119平-208平的客厅朝南,双卧朝南的三居 、41平-80平的客厅朝南的一居 、80平-135平的户型方正,独立衣帽间,客厅朝南的二居 。
*获取完整户型报告,同时会有免费语音讲解服务
-
64124元/㎡
本月挂牌均价
-
4.17%
环比上月
买房加房产交流群,省钱不踩雷
3000+人正在热聊
- 免费咨询
- 专业服务
- 区域解读
- 户型分析


