新上医药企业双地铁口!西直门枫蓝国际大厦半层写字楼带车位
-
3800万
总价
-
精装修
装修
-
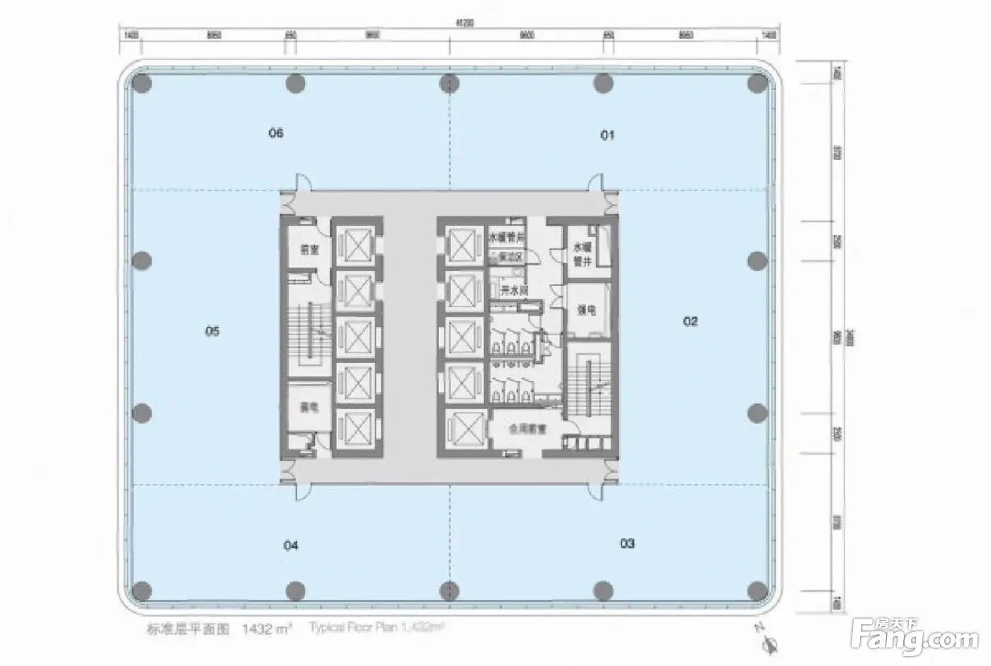
1441㎡
建筑面积
买房加房产交流群,省钱不踩雷
3000+人正在热聊
-
楼层
中层/28层
-
单价
26370元/平米
-
楼盘名称
枫蓝国际写字楼
-
区域
海淀
-
类型
纯写字楼
-
等级
甲级
-
挂牌时间
2025-06-06
房源描述(1)
-
核心卖点问经纪人
房源亮点 双地铁口!西直门枫蓝国际大厦独栋写字楼带车位适合大企业您的需求——我的追求 好房推荐: ◆地段介绍:枫蓝国际地段,交通便利,周边金融一条街,商业办公气氛非常浓郁 ◆户型特点:格局方正,无浪费空间 ◆楼层位置:高楼层,楼层,视野也很开阔 ◆装修情况:精装修 ◆产权情况:公司产权的 ◆性价优势:产权清晰 、交易快捷 ◆周边环境 :位于西直门核心区 .交通便利,楼下双地铁13号线2号线4号线西直门站。 业主山东人做医药公司的,现在企业急需周转资金,古低于市场价抛售 温馨提示:更多房源信息欢迎来电咨询, 尚宣辰在这里等您! 一个电话,一句嘱咐,一个团队,全程服务! 配套设施 独立办公间均为分体式冷暖空调,安全健康,有线电视等等 项目优势 小区环境很好,环境优美,适宜居住,人文素质高,物业管理完善! 服务介绍 本人从事房地产经纪行业多年,具有丰富的从业经验。
-
服务介绍问经纪人
本人从事房地产多年,公司有大量好房源,欢迎进入我的店铺查看,欢迎随时电话咨询,相信我的专业,为您置业安家保驾护航。
-
周边配套问经纪人
位置:小区地理位置佳,绿化率高,居民素质高 配套:有健身器材,小型篮球场,可供小区居民使用 车位:停车位充足,建有地上停车场和地下车库 保安:小区内24保安巡逻
周边配套
交通综合评分
查看全部超过北京79.1%的小区
-
地铁公交
10.0
-
驾车出行
10.0
-
城际交通
4.0
猜你喜欢
同小区其它写字楼
- 免费咨询
- 专业服务
- 区域解读
- 户型分析

