朝阳酒仙桥,望京中关村朝阳园,独栋商办写字楼出售
-
42755万
总价
-
简装修
装修
-
12955.85㎡
建筑面积
买房加房产交流群,省钱不踩雷
3000+人正在热聊
-
单价
33000元/平米
-
楼盘名称
电子城it产业园
-
区域
朝阳
-
物业费
20元/平米·月
-
类型
纯写字楼
-
等级
甲级
-
挂牌时间
2025-05-20
房源描述(1)
-
核心卖点问经纪人
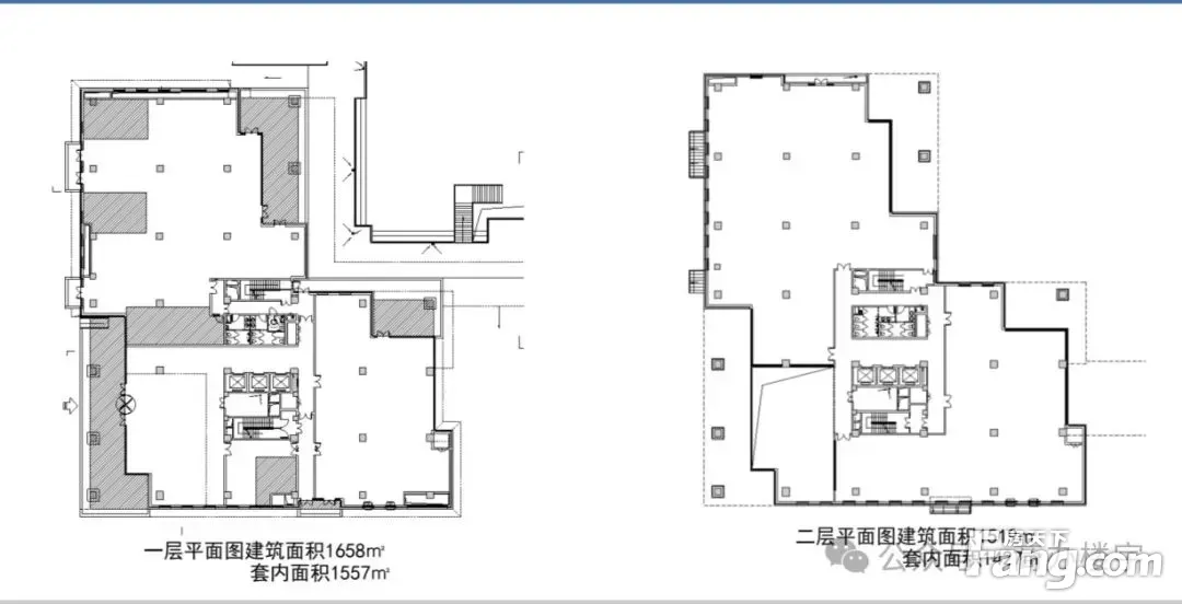
1,建筑面积:12955.85㎡ 2,出售报价:3.3万/㎡ 3,建筑高度 :30米 4,土地性质 :工业 5,土地年限:现浇钢筋混凝土框架结构 7,电梯 :共3部客梯,三菱品牌 8,空调 :中央空调(供冷暖)风机盘管加新风系统,新风量30m3/h.p
-
服务介绍问经纪人
公司自成立以来,成功的为世界500强企业,上市公司,集团公司等多家企业成功选址,在选址的过程中,体现了专业的水准和热情的服务,公司涉及的业务有商办写字楼的大宗资产买卖,租赁交易等,让企业选址,不止于此
-
周边配套问经纪人
9,总层数: 地上7层,地下车位租赁 10,层高 :首层5米,大堂9米标准层3.95米 11,单层面积: 1900㎡左右 12,柱距: 8.4米 13,楼层荷载: 楼面3.5kn/m 交易方式:股权交易 该写字楼为纯办公性质,无商业混杂,适合大型企业总部或科技公司整层入驻。12955.85平方米的超大平层空间可满足企业一体化办公需求,7层的总高设计保证了良好的垂直交通效率。酒仙桥区域作为北京传统的高科技产业聚集区,具有成熟的商务配套和产业生态,是企业的理想选择。
-
交通出行问经纪人
大山子出口(S12机场高速东北向) 2530m 大山子出口(S12机场高速西南向) 2635m S12机场高速入口(首都机场方向) 3031m S12机场高速入口(四环路方向) 3048m 三元东桥出口(S12机场高速东北向) 3791m S12机场高速入口(东北向) 3932m 新东路出口(S12机场高速西南向) 4181m S51机场第二高速出口(西向) 4723m S51机场第二高速入口(东向) 4732m
周边配套
交通综合评分
查看全部超过北京84.5%的小区
-
地铁公交
9.0
-
驾车出行
10.0
猜你喜欢
同小区其它写字楼
- 免费咨询
- 专业服务
- 区域解读
- 户型分析


