企业独栋丨朝阳东坝地铁1丨众汇 智汇广场丨办公招待
-
5780万
总价
-
毛坯
装修
-
2890㎡
建筑面积
买房加房产交流群,省钱不踩雷
3000+人正在热聊
加入群聊
-
楼层
顶层/3层
-
单价
20000元/平米
-
楼盘名称
众汇广场
-
区域
朝阳
-
类型
纯写字楼
-
等级
甲级
-
挂牌时间
2025-05-19
房源描述(1)
-
核心卖点问经纪人
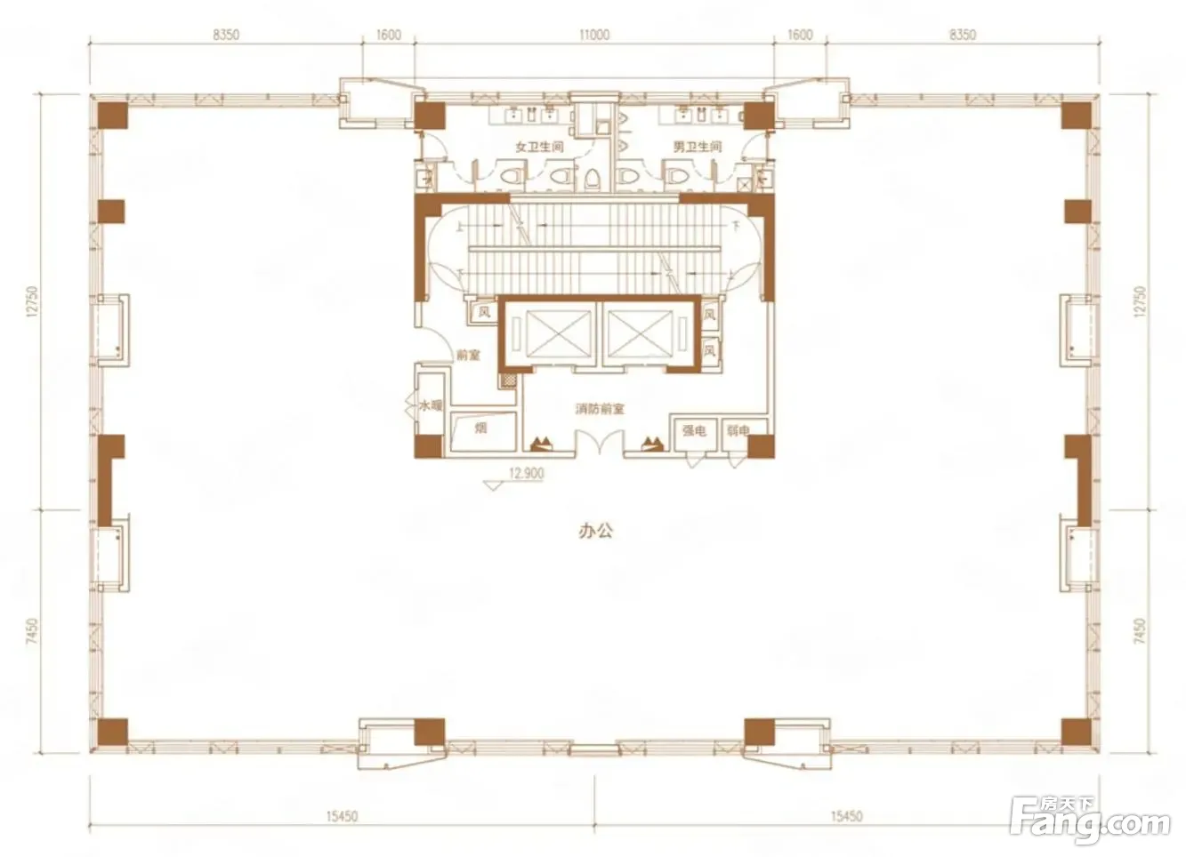
广告房源千,大浪淘沙,真金始见。 与其说找到合适您的房源,莫不如找到一个靠谱的中介。 明德买卖部刘东明,从事房地产经纪13年,执照房地产经纪人证。 以专业,从心出发。 本案真实在售,我已实地勘察,掌握基本情况,业主诚意出售 房本发票已提供,建委档案查询无纠纷,随时可交易。 项目名称:众汇广场 出售面积:2890平米地上三层,(地下1层不计入) 房屋朝向:四面采光 交易:给自承担买方只有契税 产权性质:40年用房 房本数量:整栋1个房本 房屋状态:空置毛坯状态 房屋卖点:独栋,全业态无任何限制,,经营(医疗,餐饮)招待会所,居家自用。 产权交易,随时可自由交易,无产业限制,准入等要求。
-
服务介绍问经纪人
北京明德房地产经纪有限公司成立于2010年,公司业务涵盖选址、资产与管税服务和依托大数据的行业咨询等,为不同业态处于不同发展阶段的企业提供全面化、系统化、可持续的服务。 中国·远行一直秉承专业、责
-
周边配套问经纪人
小区地理位置好,配套设施齐全,交通便利,居民素质高。
-
交通出行问经纪人
产权干净,税费清晰,欢迎来电咨询该房屋详情,静候您的来电!
周边配套
地址:朝运街和光尘樾西北侧约160米众汇广场
交通综合评分
查看全部5.0
“一般”
超过北京1.8%的小区
-
地铁公交
5.0
-
驾车出行
10.0
猜你喜欢
同小区其它写字楼
- 免费咨询
- 专业服务
- 区域解读
- 户型分析
免责声明:房源信息由网站用户提供,其真实性、合法性由信息提供者负责,最终以政府部门登记备案为准。本网站不声明或保证内容之正确性和可靠性,购买该房屋时,请谨慎核查。入学情况仅凭历史经验总结,在此不承诺升学事宜。请您在签订合同之前,切勿支付任何形式的费用,以免上当受骗。


