朝阳东坝众汇广场3000平可冠名独栋出售临地铁站带产权车位
-
4500万
总价
-
精装修
装修
-
3000㎡
建筑面积
买房加房产交流群,省钱不踩雷
3000+人正在热聊
加入群聊
-
楼层
底层/5层
-
单价
15000元/平米
-
楼盘名称
众汇广场
-
区域
朝阳
-
类型
纯写字楼
-
等级
甲级
-
挂牌时间
2025-05-19
房源描述(1)
-
核心卖点问经纪人
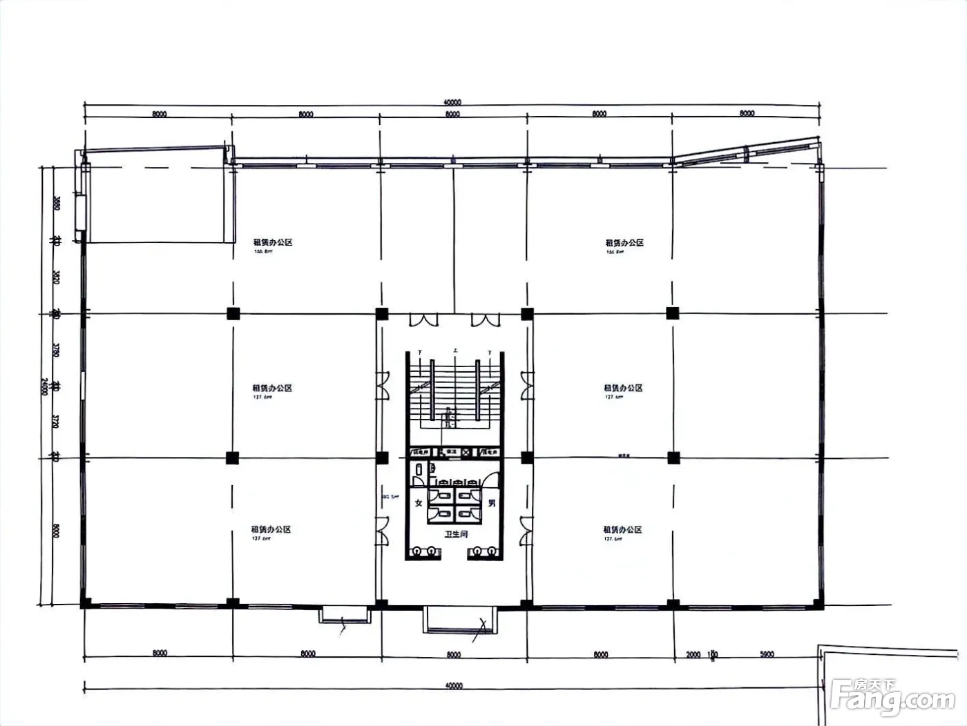
朝阳东坝众汇广场3000平5400平7500平独栋2万 众汇广场基础信息一览 项目位置 朝阳区东坝中街驹子房三区东侧 项目规划 总建面:61298 建面:33687.54 建面:27610.46 车位数量:226个 区域价值 公交接轨:距地铁3号线东坝中街站1.5,距东四环仅7 产业主轴:位于第四区核心,北侧为金盏国际商贸中心 梁柱归边无遮挡阔朗空间70%超高使用率 4.5米,再造商务布局标准
-
服务介绍问经纪人
很高兴为您服务!我保证我录入的房子都是真实在售的,向您传递的都是真实、准确的信息!如果您给机会我将为您提供安全、高效、愉悦的购房体验!期待您的来电!
-
周边配套问经纪人
户型好:采光通风良好,让您时刻感受温暖的阳光 装修佳:装修过生活,享受美好生活。 交通便利:多路公交,地铁,自驾都很方便。 小区环境优美,配套设施齐全 附近咖啡厅、健身房、电影院、商场、各种餐厅等设施齐全。
-
交通出行问经纪人
附近有多条公交和地铁线路,四通八达,满足您出行的各种需要
周边配套
地址:朝运街和光尘樾西北侧约160米众汇广场
交通综合评分
查看全部5.0
“一般”
超过北京1.8%的小区
-
地铁公交
5.0
-
驾车出行
10.0
猜你喜欢
同小区其它写字楼
- 免费咨询
- 专业服务
- 区域解读
- 户型分析
免责声明:房源信息由网站用户提供,其真实性、合法性由信息提供者负责,最终以政府部门登记备案为准。本网站不声明或保证内容之正确性和可靠性,购买该房屋时,请谨慎核查。入学情况仅凭历史经验总结,在此不承诺升学事宜。请您在签订合同之前,切勿支付任何形式的费用,以免上当受骗。


