亦庄河西区 中旅亦府 南北通透 精装修大四居室 新风系统
-
623万
总价
-
4室2厅2卫
户型
-
130㎡
建筑面积
买房加房产交流群,省钱不踩雷
3000+人正在热聊
-
单价
47923元/平米
- 挂牌价格解析
-
楼层
中层/15层
- 咨询楼层
-
套内
129㎡
- 咨询套内使用面积
-
楼型
板楼
-
朝向
南北
-
装修
精装修
-
年代
2022
-
发布
2025-04-09
-
咨询总首付
首付约314.4万
首付税费及佣金情况 -
深度测评
小区中旅·亦府(大兴-亦庄)
-
更多
楼户比、楼层高度、交易历史、抵押信息
房源描述(1)
-
核心卖点问经纪人
核心卖点 中旅亦府位于南五环与六环之间的亦庄河西居住区,兴亦路与博兴十路交汇处,与亦庄高端住宅金茂府和人大一路之隔。开发商是港中旅,精心打造的70年产权项目。
-
业主心态问经纪人
业主心态 一、项目所在亦庄还有很大发展潜力,尤其是地铁规划。 二、项目距人大仅一路之隔,有优质的教育资源。 三、园区绿化均抬高60-80厘米,保护隐私安全。 四、一路之隔就是公园,比较宜居。 五、小区南侧自带7000平米绿化带,北侧自带7000平米下沉式商业街,南北无临街楼栋。 六、距南海子公园2.6公里,临近天然氧吧,非常宜居。 七、亦庄自成一体,能做到职住平衡。 八、项目都是小高层和洋房,舒适度较高
-
小区配套问经纪人
小区配套 目前项目主要用亦庄河东区域的配套,河西居住区目前配套比较少。现有商业:距北京城市世纪广场7.2公里,距北京华联6.6公里,距大族广场5.5公里。现有医院:距同仁医院(三甲)和北京爱育华妇儿医院(三级)4.2公里,距东方医院(三甲)1.1公里。现有交通:距T1号线奔驰北站1.4公里左右,可直接到荣昌东街站换乘亦庄线;距8号线瀛海站3.6公里;公交578、580、599、573、49、快速公交181。现有公园:距南海子公园(历史上的皇家公园)2.6公里。 现有:距和约1公里;距亦庄第心小区地理位置佳,绿化环境优越整洁,居民素质高,物业管理完善,适宜居住
-
服务介绍问经纪人
服务信息 我是北京房产刘洋,本人从事房地产多年,公司有大量好房源,欢迎进入我的店铺查看,欢迎随时电话咨询,相信我的专业,为您置业安家保驾护航。
-
税费分析房贷计算
税费信息 关于本房的税费信息情况,请电话联系我,我将详细的为您讲解!
-
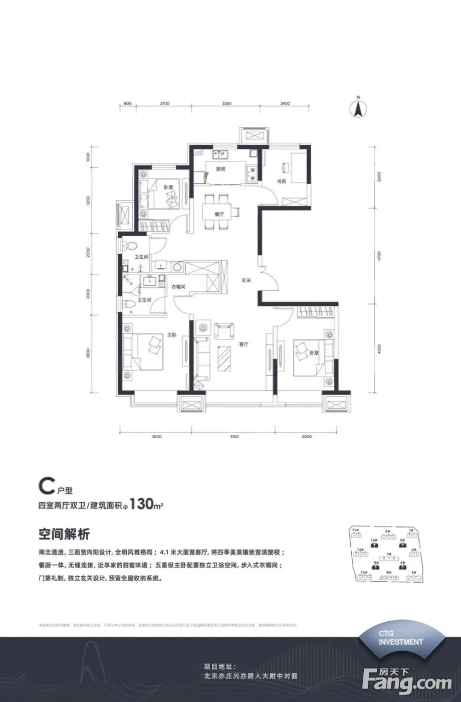
户型解读问经纪人
户型解读 四室两厅两卫卫,双眼睛户型,该户型南北的通透性很好,厨房和客户完全通透。另外入户做了一个玄关,既增强了私密性,又有效的利用了室内空间,使主卧多了一个衣帽间。房屋拥有相对宽松的尺寸,布局通透,动静分离,设计豪华
周边配套
交通综合评分
查看全部超过北京0.0%的小区
-
地铁公交
5.0
-
驾车出行
10.0
本月均价 46797元/m²
环比上月 下跌 2.5%
同比去年 下跌 8.67%
户型齐全,主打南北通透,全明格局三居
中旅·亦府户型主要有89平-89平的南北通透,全明格局的三居 、130平-130平的南北通透,全明格局的四居 、170平-170平的南北通透,全明格局的五居 。
*获取完整户型报告,同时会有免费语音讲解服务
-
47645元/㎡
本月挂牌均价
-
0.02%
环比上月
买房加房产交流群,省钱不踩雷
3000+人正在热聊
- 免费咨询
- 专业服务
- 区域解读
- 户型分析


