众汇广场独栋办公会所2880平至6921平米租售保利国际广场
-
5760万
总价
-
毛坯
装修
-
2880㎡
建筑面积
买房加房产交流群,省钱不踩雷
3000+人正在热聊
-
单价
20000元/平米
-
楼盘名称
众汇广场
-
区域
朝阳
-
物业费
16元/平米·月
-
类型
纯写字楼
-
等级
甲级
-
挂牌时间
2025-08-31
房源描述(1)
-
核心卖点问经纪人
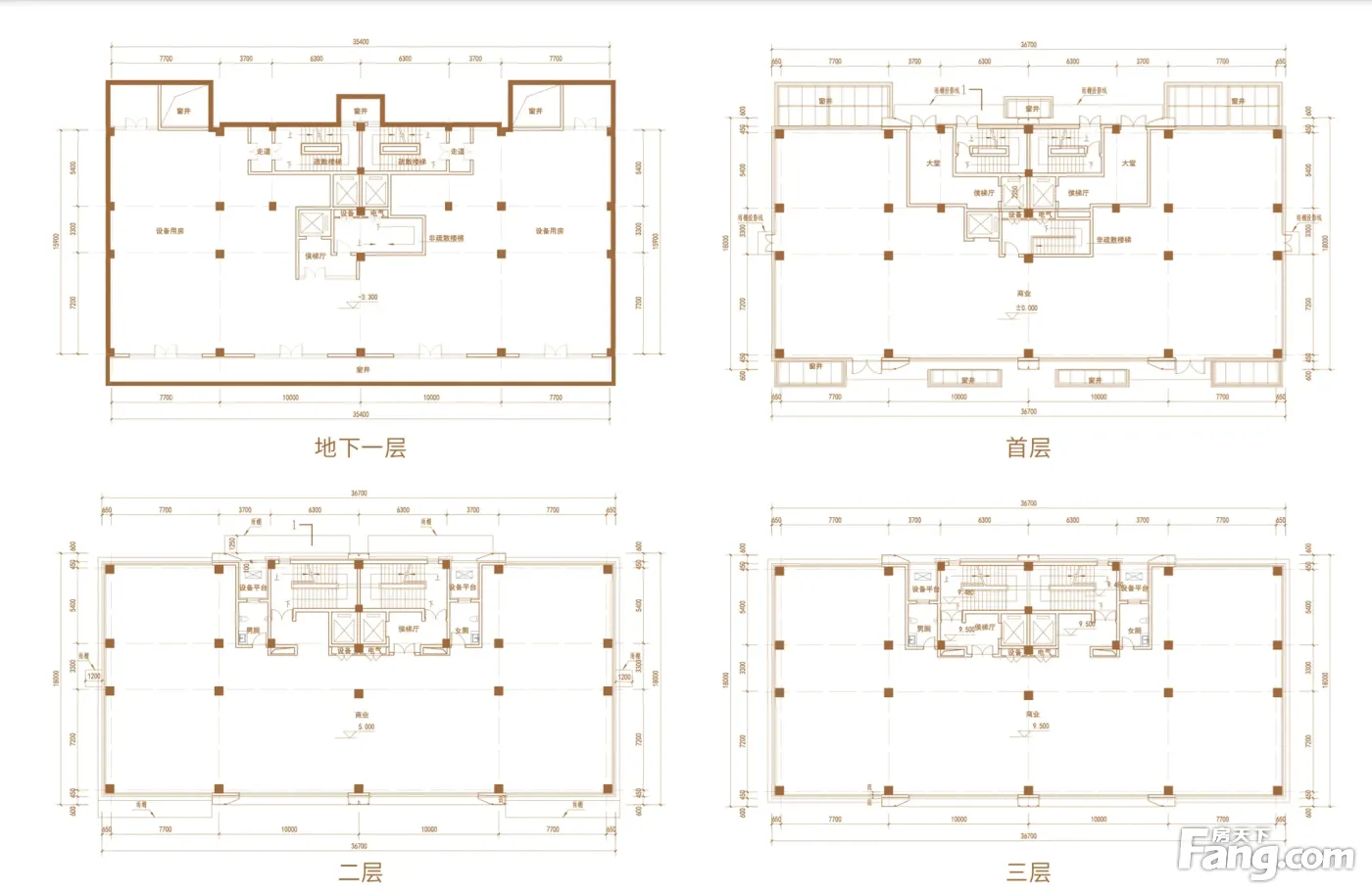
众汇广场独栋办公会所2880平至6921平米租售保利国际广场 物业类型:办公、商业 租售形式:出租、出售 占地面积:3万平米 总建筑面积:5.2万平米 独栋面积:2880平米、7588平米、12000平米等 出售价格:20000元/平米 出租价格:3元/天/平米(含票、物业) 付款方式:押三付三 签约年限:2~5年 标准层高:4.5米 总层数:地上3层~11层 使用率:80% 装修标准:毛坯或精装修 总共车位:350个 停车费:550元/月/个,临时停车:4元/ 物业费:26元/月/平米 中央空调制冷供暖, 冷49元, 暖45元, 水9.5元, 电1.25元 办公业态:影音空间、艺术剧场、办公定制、企业独栋、电竞中心、艺术馆、联合办公空间、特色餐饮、休闲娱乐、音乐酒吧、品牌发布、密室逃脱等 详细信息 众汇广场位于朝阳区东坝中街东坝驹子房三区东侧,地处京四区东坝国际贸易中心,是北京自贸试验区、国际商务服务片区。项目汇集地铁3号线和地铁12号线,双地铁即将开通,有三条城市主干道环绕,高效的路网交通便捷通达全城。这里是新兴的商务核心区域,在这里办公可以享受到便利的交通条件和繁荣的商业氛围。众汇广场总建面为52252.72平方米,其中办公建面为45039.63平方米,商业建面为7213.09平方米。
-
服务介绍问经纪人
本人从事房地产行业多年,涉及北京各区,东城、西城、丰台、昌平、海淀、朝阳,通州、大兴、顺义、亦庄、石景山、门头沟等都有项目,多年的地产经验、已经跟很多业主成为朋友,长期合作,希望能为您提供专业服务。
-
周边配套问经纪人
周边配套 酒店:北京奥林匹克花园运动城、格林豪泰酒店、北京朝新盛林假日酒店 商场:京客隆超市、华联生鲜超市、金隅嘉品Mall(大型购物广场)、东坝万达广场 银行:邮政银行、工商银行、建设银行、农业银行
-
交通出行问经纪人
交通情况 高速:五环路、六环路、机场高速、京平高速、京承高速等 地 铁:地铁3号线“东坝”站约1500米 公 交:350 路、659路,640路、847路、973路、989路等
周边配套
交通综合评分
查看全部超过北京1.8%的小区
-
地铁公交
5.0
-
驾车出行
10.0
猜你喜欢
同小区其它写字楼
- 免费咨询
- 专业服务
- 区域解读
- 户型分析


