北辰红橡墅 联排边户 精装修 南无遮挡
-
1185万
总价
-
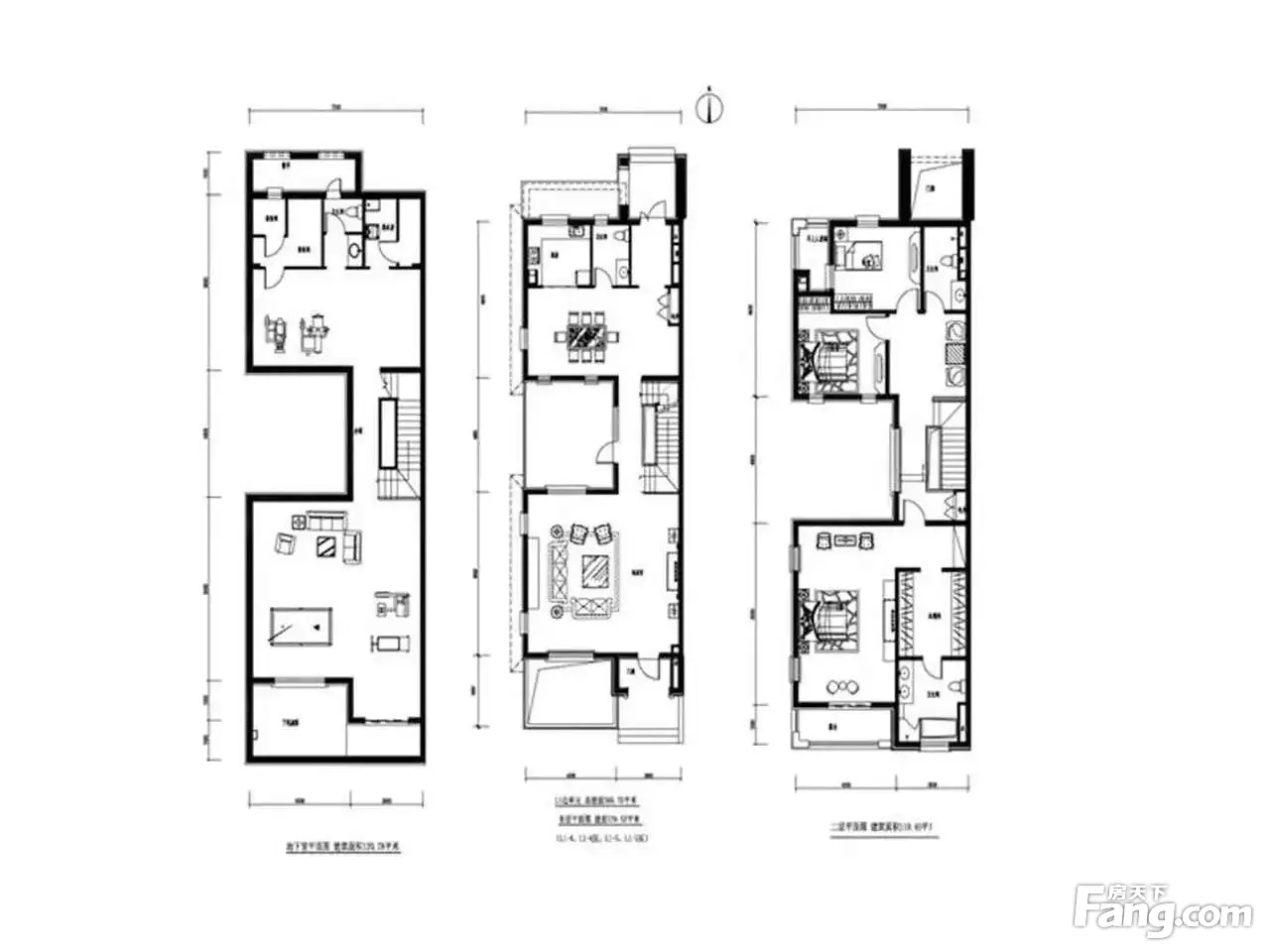
3室4厅4卫
户型
-
370.76㎡
建筑面积
买房加房产交流群,省钱不踩雷
3000+人正在热聊
加入群聊
-
单价
31961元/平米
- 挂牌价格解析
-
楼层
1层
- 咨询楼层
-
套内
暂无数据
- 咨询套内使用面积
-
楼型
联排
-
朝向
南
-
装修
简装修
-
年代
2017
-
发布
2026-03-14
-
地铁
暂无数据
-
咨询总首付
首付约402.1万
首付税费及佣金情况 -
深度测评
小区北辰红橡墅(昌平-北七家)
-
更多
楼户比、楼层高度、交易历史、抵押信息
房源描述(1)
-
核心卖点问经纪人
相信为您推荐的这套房子您一定会满意,赶快行动吧,先到先得! 房屋年代∶2017年,房屋面积∶370.76平方米,朝向∶正南 1. 小区配备良好物业管理,让你享受宾至如归的服务; 2. 小区人文素质高,是您的居家的品质选择; 3. 小区环境安静舒适,让您拥有高品质的生活环境; 4. 小区绿化高,绿树成荫鸟语花香让您随时呼吸到新鲜空气。
-
业主心态问经纪人
由于业主工作生活圈变动,不愿让房屋长时间闲置,故出手该房。 业主诚意出售,随时签约。
-
小区配套问经纪人
小区居民以私营业主,企业高管,高校教师及文艺界人士,整体素质高,配套设施齐全,地理位置好,交通便利。 奥北别墅社区,北京正北,温榆河流域,自然环境空气好,高素质群体,价格惠民。成熟生活圈,交通就學医疗相对完善。
-
服务介绍问经纪人
个人宣言:用专业的打造完.美的体验,因专业产生效率!一次成交,一生朋友! 专业: 为您选房→配房→带您看房→满意→付意向→转定→签合同→首付→交易过户→新产证→放贷→交房(水电煤过户),期待您的来电。
-
税费分析房贷计算
该房已做房屋核验,产权清新!关于本房税费及其他情况,电话或在线咨询。欢迎您随时和我联系!
周边配套
地址:小汤山镇立汤路7号院
交通综合评分
查看全部4.7
“一般”
超过北京94.9%的小区
-
地铁公交
5.0
-
驾车出行
9.0
猜你喜欢
同小区其它房源
-
36633元/㎡
本月挂牌均价
-
0.46%
环比上月
买房加房产交流群,省钱不踩雷
3000+人正在热聊
加入群聊
- 免费咨询
- 专业服务
- 区域解读
- 户型分析
免责声明:房源信息由网站用户提供,其真实性、合法性由信息提供者负责,最终以政府部门登记备案为准。本网站不声明或保证内容之正确性和可靠性,购买该房屋时,请谨慎核查。入学情况仅凭历史经验总结,在此不承诺升学事宜。请您在签订合同之前,切勿支付任何形式的费用,以免上当受骗。


