亦庄北京润府 精装修洋房 四居室 紧邻地铁17号 公园地产
-
670万
总价
-
4室2厅2卫
户型
-
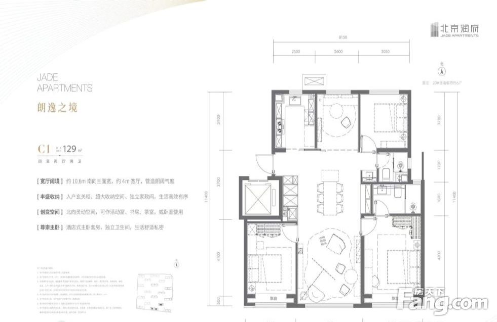
129㎡
建筑面积
买房加房产交流群,省钱不踩雷
3000+人正在热聊
-
单价
51938元/平米
- 挂牌价格解析
-
楼层
中层/15层
- 咨询楼层
-
套内
128㎡
- 咨询套内使用面积
-
楼型
板楼
-
朝向
南北
-
装修
简装修
-
年代
2024
-
发布
2026-03-01
-
地铁
距17号线北神树约452米
-
咨询总首付
首付约361.4万
首付税费及佣金情况 -
深度测评
小区北京润府(大兴-次渠)
-
更多
楼户比、楼层高度、交易历史、抵押信息
房源描述(1)
-
核心卖点问经纪人
核心卖点 北京润府位于北京市通州区,地处亦庄经济技术开发区嘉创一路与兴光三街交叉口,由北京润悦置业有限公司倾心打造。本次分析的该楼盘物业类型为住宅。 位踞地铁17号线北神树站,地铁三站抵达三环,七站畅达国贸,以TOD模式擎引产业动能 万象汇聚,缤纷生活 项目南侧总建面约18.8万㎡购物中心(规划中),万象商业品牌运营,计划引入餐饮、娱乐、亲子、快时尚、超市、影院等业态,一路之隔,满足一站式生活需求
-
业主心态问经纪人
户型解读 周边3km(直线距离)内有6个公园,有1个休闲广场,距离最近的东居时代小区广场距离项目1650米。项目附近有多家便利店或菜市场步行可达,可满足日常简单的买菜需求 医疗:周边3km(直线距离)内有1家三甲/综合医院,距离最近的北京军海中医医院距离项目2498米。有19家诊所。房屋拥有相对宽松的尺寸,布局通透,动静分离,设计豪华
-
小区配套问经纪人
小区配套 便利的生活配套设施对于品质生活而言,是至关重要的因素之一。为了更加直观,将日常的生活配套进一步细分为购物、休闲便利、医疗三个维度。该小区对比所在区域同物业类型楼盘周边配套中休闲便利、购物、医疗相比而言略显薄弱。购物:周边3km(直线距离)内有2个购物中心,距离最近的次渠购物中心距离项目2388米,除此之外还有百发隆购物中心等。有107个大型超市,距离最近的云网驿站距离项目145米,除此之外还有新发地便民生鲜超市、凯悦国际超市等。
-
服务介绍问经纪人
服务信息 我是北京房产经纪人刘洋,本人做房产多年,一直本着专业的房产知识,为您服务,我会在短的时间内帮您买好满意的房子,不让您错失任何好房子,更不让您每天为买房的事烦心,欢迎随时拨打我电话。
-
税费分析房贷计算
税费信息 关于本房的税费信息情况,请电话联系我,我将详细的为您讲解!
-
户型解读问经纪人
户型解读 周边3km(直线距离)内有6个公园,有1个休闲广场,距离最近的东居时代小区广场距离项目1650米。项目附近有多家便利店或菜市场步行可达,可满足日常简单的买菜需求 医疗:周边3km(直线距离)内有1家三甲/综合医院,距离最近的北京军海中医医院距离项目2498米。有19家诊所。房屋拥有相对宽松的尺寸,布局通透,动静分离,设计豪华
周边配套
本月均价 52759元/m²
环比上月 上涨 0.72%
同比去年 下跌 6.33%
户型齐全,主打南北通透,三开间朝南,主卧套间,U型厨房四居
北京润府户型主要有132平-177平的南北通透,三开间朝南,主卧套间,U型厨房的四居 、98平-113平的南北通透,主卧朝南,U型厨房的三居 。
*获取完整户型报告,同时会有免费语音讲解服务
买房加房产交流群,省钱不踩雷
3000+人正在热聊
- 免费咨询
- 专业服务
- 区域解读
- 户型分析


