通州宋庄【找我额外优惠) 温榆河畔,格拉斯小镇,纯别墅社区,
-
2200万
总价
-
5室5厅5卫
户型
-
441㎡
建筑面积
买房加房产交流群,省钱不踩雷
3000+人正在热聊
-
单价
49887元/平米
- 挂牌价格解析
-
楼层
2层
- 咨询楼层
-
套内
374.85㎡
- 咨询套内使用面积
-
楼型
独栋
-
朝向
南
-
装修
毛坯
-
年代
2025
-
发布
2025-11-24
-
地铁
暂无数据
-
咨询总首付
首付约746.8万
首付税费及佣金情况 -
深度测评
小区格拉斯小镇(通州-通州其它)
-
更多
楼户比、楼层高度、交易历史、抵押信息
房源描述(1)
-
核心卖点问经纪人
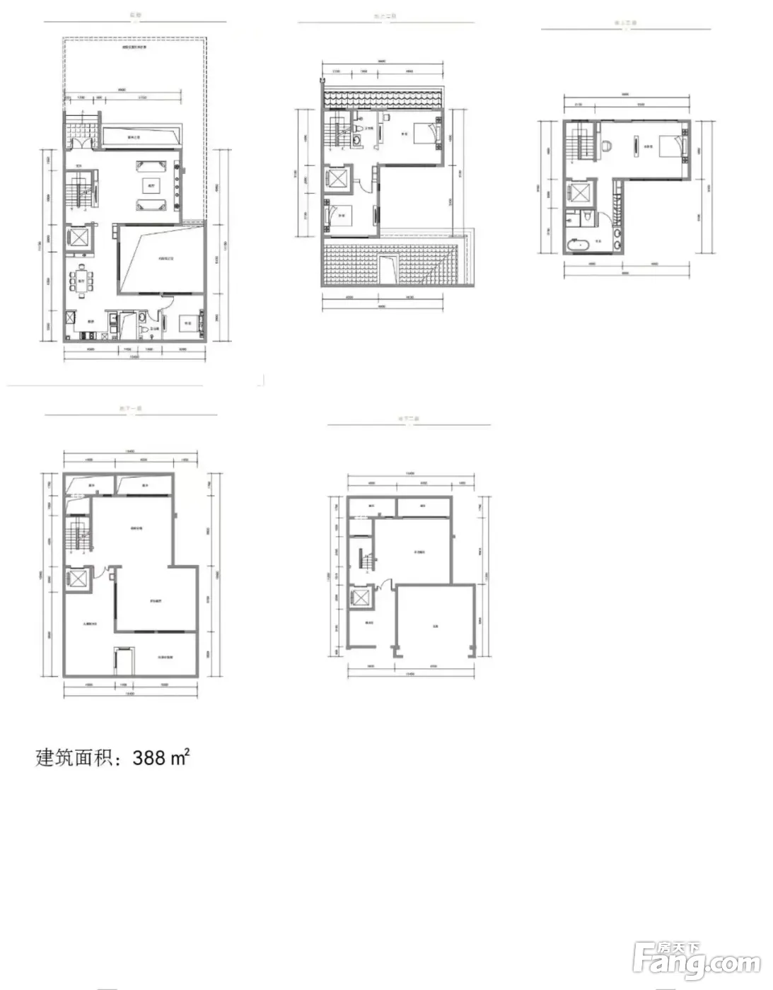
生活在公园里,社区有天然水系有小镇,天然河流3公里 真正的桃花源林 #本房基本信息# 面积:411平(实得800平)花园:350平 居室:5室5厅5卫报价:3600万 #婉婷解析本房亮点# 【视野开阔】组团边户,不临主路,楼间距大,西向观同排花园,无对视,感升级。 【价格优】格拉斯四期实得且保留大花园的房子中总价低的一套,业主的总成本在3400万,现报价3600万,底价3450! 【户型好】五居室设计,三个南向卧室。二层3居全套房,2南向套房。
-
业主心态问经纪人
【新的房源底价情况电话里跟您沟通,为保隐私,还请谅解】 格拉斯看好房 1、二期精装独栋,客户刚谈,知底价(现2600W) 2、三期新出原始毛坯,社区价格低,现2550W 3、三期精装独栋(原样板间)亏本550万卖,现3900W 4、四期中式独栋,南花园仅2席,给千万红木家具,4000W 更多好房,等您实地品鉴❤ 5,六期,有房源
-
小区配套问经纪人
以8栋地中海建筑营造出原汁原味的法式建筑构成。目前营业的有原乡餐厅、西餐咖啡厅、法餐厅、洗衣房,健身房、李连杰和马云大师开的太极禅养生馆(茶道、花道、香道),红酒吧、雪茄吧,书吧,儿童游乐场、会议室,五星酒店等
-
服务介绍问经纪人
您有2种方式可以联系到我: 1、点击下方的微聊和电话,您都能联系到我,为您解决问题。 2、您用电脑的话,在我的头像下方可以扫二维码查看电话。 专注、高效、用心,珍惜所有,成就所托。
-
税费分析房贷计算
产权干净,费用清晰,首套46万,二套92万
周边配套
猜你喜欢
同小区其它房源
户型齐全,主打南北通透,客厅朝南,主卧带卫四居
格拉斯墅区户型主要有330平-597平的南北通透,客厅朝南,主卧带卫的四居 、247平-330平的南北通透,客厅朝南,主卧带卫的三居 、822平-822平的南北通透,客厅朝南的五居 。
*获取完整户型报告,同时会有免费语音讲解服务
-
26979元/㎡
本月挂牌均价
-
1.29%
环比上月
买房加房产交流群,省钱不踩雷
3000+人正在热聊
- 免费咨询
- 专业服务
- 区域解读
- 户型分析


