独栋可冠名亦庄京东总部旁3500平米单价1万
-
3500万
总价
-
简装修
装修
-
3500㎡
建筑面积
买房加房产交流群,省钱不踩雷
3000+人正在热聊
加入群聊
-
楼层
底层/6层
-
单价
10000元/平米
-
楼盘名称
天骥智谷
-
区域
通州
-
物业费
4元/平米·月
-
类型
纯写字楼
-
等级
甲级
-
挂牌时间
2025-03-26
房源描述(1)
-
核心卖点问经纪人
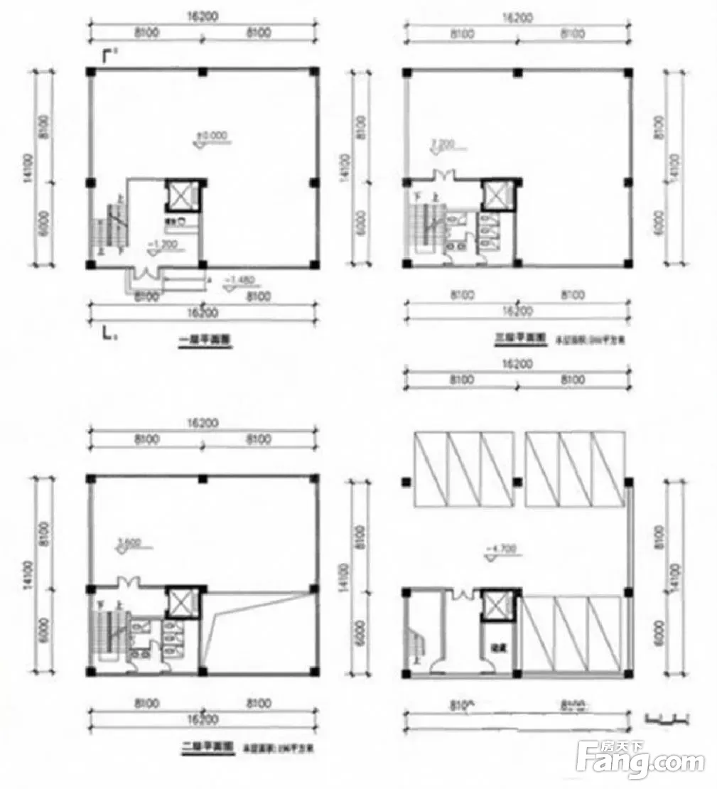
房源亮点 欢迎有房业主来电委托登记! 因版面有限,更多在售房源信息,请点击头像进入我的店铺查看,或者电话联系咨询。 金典佳和店尚宣辰竭诚为您服务! - 项目名称:亦庄企业独栋 房屋面积:3500平米 出售价格:单价10000元/平米 交易成本:3%契税和印花税 建成年代:2013年 所在楼层:地上5层 地下1层 房屋朝向:四面均有采光 产权情况:公司产权 交房方式: 房屋装修:精致装修 房本情况:1个房本 楼层层高:4.5米 框架结构 市场租金:2-3元每平每天 地铁交通:地铁亦庄线经海路站 看房时间:工作日上班时间提前联系 配套设施 我能够为您提供的服务:1.咨询服务:为您提供目前新的房产业务的咨询,提供适合您的物业信息及交易方案!2.实地考察:根据客户需求实地寻找适合您的物业,为客户做初步筛选。再带客户实地考察,并与业主进行沟通谈判,促进成交!3.售后服务:根据客户要求协助办理各种售后手续4.代理服务:为客户代理他们各类房产的买卖、租赁业务,确认代理关系,帮助推荐寻找下一级客户,并确保交易的完成! 项目优势
-
服务介绍问经纪人
本人从事房地产多年,公司有大量好房源,欢迎进入我的店铺查看,欢迎随时电话咨询,相信我的专业,为您置业安家保驾护航。
-
周边配套问经纪人
位置:小区地理位置佳,绿化率高,居民素质高 配套:有健身器材,小型篮球场,可供小区居民使用 车位:停车位充足,建有地上停车场和地下车库 保安:小区内24保安巡逻
周边配套
地址:经海一路与科创十二街交叉口
交通综合评分
查看全部6.6
“较好”
超过北京30.7%的小区
-
地铁公交
9.0
-
驾车出行
10.0
猜你喜欢
同小区其它写字楼
- 免费咨询
- 专业服务
- 区域解读
- 户型分析
免责声明:房源信息由网站用户提供,其真实性、合法性由信息提供者负责,最终以政府部门登记备案为准。本网站不声明或保证内容之正确性和可靠性,购买该房屋时,请谨慎核查。入学情况仅凭历史经验总结,在此不承诺升学事宜。请您在签订合同之前,切勿支付任何形式的费用,以免上当受骗。

