好房出售 中海京叁號院 南北通透 豪华装修四居室 诚心出售
-
1100万
总价
-
4室2厅3卫
户型
-
200.48㎡
建筑面积
买房加房产交流群,省钱不踩雷
3000+人正在热聊
-
单价
54868元/平米
- 挂牌价格解析
-
楼层
低层/23层
- 咨询楼层
-
套内
199㎡
- 咨询套内使用面积
-
楼型
板楼
-
朝向
南北
-
装修
精装修
-
年代
2023
-
发布
2026-01-06
-
地铁
距亦庄T1线四海庄站约1044米
-
咨询总首付
首付约373.9万
首付税费及佣金情况 -
深度测评
小区中海京叁號院(大兴-亦庄)
-
更多
楼户比、楼层高度、交易历史、抵押信息
房源描述(1)
-
核心卖点问经纪人
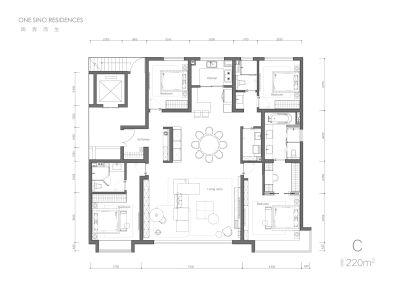
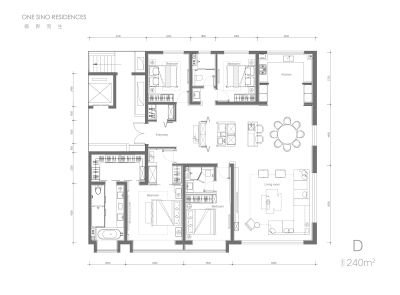
核心卖点 边户明厨明卫四叶草户型,动静分区互不打扰,270度转角飘窗 小区介绍 小区共21栋21-26层高层住宅构成,园林设计参考纽约公园打造外部高纵深围合,内部空间营造的设计理念,打造现代多层次折叠的园区。998户,物业费:6.88元/㎡·月。配备私人会所。
-
业主心态问经纪人
业主心态 很高兴您能看到我的这个房子,该房源是我们买的一手房,全屋家居都是品牌定制;楼层也是我们精挑细选的楼层,前后无遮挡,可以看见水库的景观,视野开阔,房无采光和通风效果是!希望可以找到有缘的客户!房东置换,诚心出售,可以再谈,欢迎看房,随时恭候
-
小区配套问经纪人
小区配套 有两大公园:南海子湿地公园,滨河公园,生态环境优美;交通有599,兴74路;便利店和生活超市都方便;药店宠物医院和社区医院都有,小区地理位置佳,绿化环境优越整洁,居民素质高,物业管理完善,适宜居。
-
服务介绍问经纪人
服务信息 我是北京房产经纪人刘洋,本人做房产多年,一直本着专业的房产知识,为您服务,我会在短的时间内帮您买好满意的房子,不让您错失任何好房子,更不让您每天为买房的事烦心,欢迎随时拨打我电话。
-
税费分析房贷计算
税费信息 关于本房的税费信息情况,请电话联系我,我将详细的为您讲解!
-
户型解读问经纪人
户型解读 房屋拥有相对宽松的尺寸,布局通透,动静分离,设计豪华
周边配套
交通综合评分
查看全部超过北京0.0%的小区
-
地铁公交
5.0
-
驾车出行
10.0
本月均价 73141元/m²
环比上月 下跌 0.52%
同比去年 下跌 15.16%
猜你喜欢
同小区其它房源
户型齐全,主打户型方正,采光充足,客厅朝南,主卧套间,双卧朝南四居
中海京叁號院户型主要有200平-240平的户型方正,采光充足,客厅朝南,主卧套间,双卧朝南的四居 、168平-168平的户型方正,采光充足,客厅朝南,主卧朝南的三居 。
*获取完整户型报告,同时会有免费语音讲解服务
-
47645元/㎡
本月挂牌均价
-
0.02%
环比上月
买房加房产交流群,省钱不踩雷
3000+人正在热聊
- 免费咨询
- 专业服务
- 区域解读
- 户型分析


