岳各庄靛厂锦园南北两居室精装房源
-
455万元
总价
-
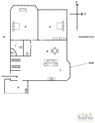
2室1厅1卫
户型
-
85.64㎡
建筑面积
买房加房产交流群,省钱不踩雷
3000+人正在热聊
加入群聊
-
单价
53129元/平米
- 挂牌价格解析
-
楼层
底层/9层
- 咨询楼层
-
套内
暂无数据
- 咨询套内使用面积
-
朝向
南北
-
年代
2006
-
发布
2024-11-15
-
地铁
暂无数据
-
咨询总首付
首付约153.2万
首付税费及佣金情况 -
深度测评
小区靛厂锦园(丰台-岳各庄)
-
更多
楼户比、楼层高度、交易历史、抵押信息
业主自评
-
南巷清风652
加入房天下766天
接电时间:09:00-22:00
这套位于北京丰台区岳各庄靛厂锦园的85.64平方米两室一厅一卫南北通透的房源,处于优越的地理位置,周边生活配套设施完善,交通便利。房屋采光充足,户型设计合理,整体装修精致现代。客厅宽敞明亮,卧室宁静舒适,厨房卫生间设施齐全,满足日常居住需求。居住环境安静宜人,小区绿化率高,物业管理完善,居民素质高,适合年轻家庭或情侣居住。这套房源的特点是南北通透,采光好,空间布局合理,居住舒适。小区周边配套齐全,有商业街、超市、餐饮等便利设施,生活便捷。同时,周边交通便利,多路公交线路可达,出行方便快捷。房屋内部装修现代简约风格,整体色调明亮柔和,让居住者感受到温馨舒适的家的氛围。总体来说,这套房源是一处宜居的好选择
这套位于北京丰台区岳各庄靛厂锦园的85.64平方米两室一厅一卫南北通透的房源,处于优越的地理位置,周边生活配套设施完善,交通便利。房屋采光充足,户型设计合理,整体装修精致现代。客厅宽敞明亮,卧室宁静舒适,厨房卫生间设施齐全,满足日常居住需求。居住环境安静宜人,小区绿化率高,物业管理完善,居民素质高,适合年轻家庭或情侣居住。这套房源的特点是南北通透,采光好,空间布局合理,居住舒适。小区周边配套齐全,有商业街、超市、餐饮等便利设施,生活便捷。同时,周边交通便利,多路公交线路可达,出行方便快捷。房屋内部装修现代简约风格,整体色调明亮柔和,让居住者感受到温馨舒适的家的氛围。总体来说,这套房源是一处宜居的好选择
周边配套
地址:靛厂路,西四环中路以东
交通综合评分
查看全部6.3
“较好”
超过北京84.5%的小区
-
地铁公交
5.0
-
驾车出行
10.0
-
城际交通
4.5
本月均价 48765元/m²
环比上月 下跌 4.56%
同比去年 下跌 10.79%
猜你喜欢
同小区其它房源
-
49271元/㎡
本月挂牌均价
-
1.32%
环比上月
买房加房产交流群,省钱不踩雷
3000+人正在热聊
加入群聊
联系业主
免责声明:房源信息由网站用户提供,其真实性、合法性由信息提供者负责,最终以政府部门登记备案为准。本网站不声明或保证内容之正确性和可靠性,购买该房屋时,请谨慎核查。入学情况仅凭历史经验总结,在此不承诺升学事宜。请您在签订合同之前,切勿支付任何形式的费用,以免上当受骗。

