朝阳 翠成馨园 1室1厅
-
299万元
总价
-
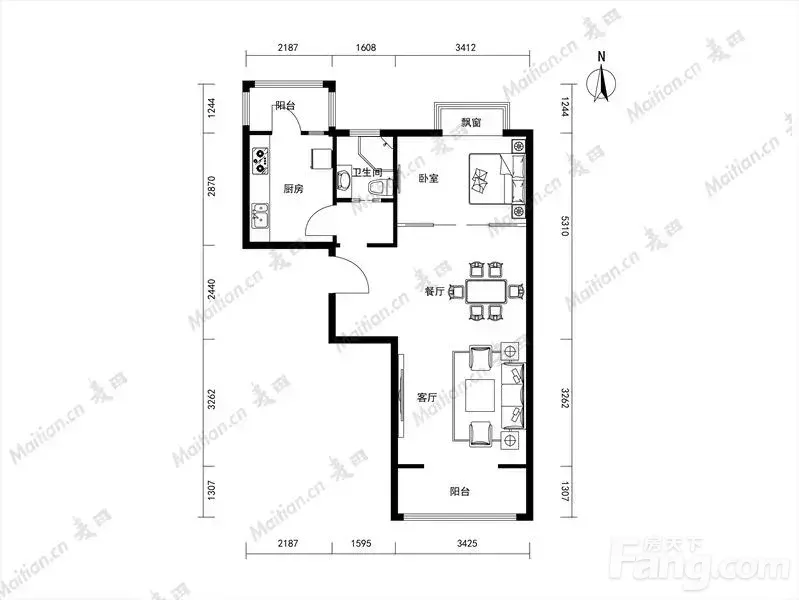
1室1厅1卫
户型
-
67㎡
建筑面积
买房加房产交流群,省钱不踩雷
3000+人正在热聊
加入群聊
-
单价
44627元/平米
- 挂牌价格解析
-
楼层
中层/11层
- 咨询楼层
-
套内
暂无数据
- 咨询套内使用面积
-
朝向
南北
-
年代
2007
-
发布
2025-08-26
-
地铁
距7号线垡头站约743米
-
咨询总首付
首付约100.2万
首付税费及佣金情况 -
深度测评
小区翠成馨园(朝阳-垡头)
-
更多
楼户比、楼层高度、交易历史、抵押信息
业主自评
-
蒋志华
加入房天下5344天
接电时间:9:00-20:00
周边配套
地址:京沈高速东四环第一出口往南800米
交通综合评分
查看全部7.0
“较好”
超过北京87.3%的小区
-
地铁公交
10.0
-
驾车出行
10.0
本月均价 35289元/m²
环比上月 下跌 0.66%
同比去年 下跌 14.17%
猜你喜欢
同小区其它房源
户型齐全,主打客厅朝南二居
翠成馨园户型主要有50平-128平的客厅朝南的二居 、79平-186平的户型方正,独立衣帽间,客厅朝南,双阳台,双卧朝南的三居 、46平-116平的户型方正,客厅朝南的一居 。
*获取完整户型报告,同时会有免费语音讲解服务
-
41916元/㎡
本月挂牌均价
-
0.98%
环比上月
买房加房产交流群,省钱不踩雷
3000+人正在热聊
加入群聊
联系业主
免责声明:房源信息由网站用户提供,其真实性、合法性由信息提供者负责,最终以政府部门登记备案为准。本网站不声明或保证内容之正确性和可靠性,购买该房屋时,请谨慎核查。入学情况仅凭历史经验总结,在此不承诺升学事宜。请您在签订合同之前,切勿支付任何形式的费用,以免上当受骗。

