实拍照片,翠湖雅苑大横厅,全屋地暖中空,家具家电全配,拎包住
-
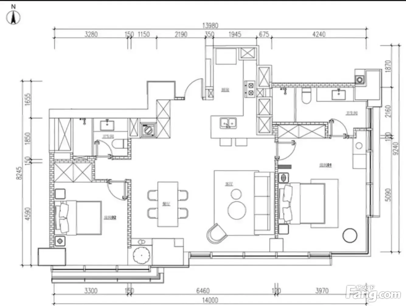
2室2厅2卫
整租
-
117㎡
面积
-
中层/15层
楼层
-
南北
朝向
2026-03-15更新
租房不踩坑
3000+人正在热聊
-
看房
随时看房
-
装修
精装修
-
入住
2026-03-15
-
咨询经纪人,了解更多房源信息
问一问
费用明细
-
押一付三
付款方式
-
28800
租金(元/月)
-
***
押金
-
***
服务费
- 房租含取暖费吗?
- 房租含物业费吗?
房源描述
-
房源亮点问经纪人
申明 :我发布的房子的价格可能比别人高,但是真实!我的图片没别人那么的炫 没那么的精彩 ,但是 我的图片是自己实地拍摄的!网络看房百套,不如实地看房一套,性价比很高的一套的房子,喜欢房子的请速联系我,好房子租的快,欲看速约,欲租从速,24随时恭候。 3.房屋配套;全屋地暖,中央空调 4.装修情况:豪华装修,拎包入住,包物业、包发.票、包车位、全套家具家电、电视和保修服务、有保姆间。, 5.产权情况:产权清晰、不存在纠纷(签约当天业主本人到场) 6.照片情况:公司摄影师拍摄 7.家具配置:目前空房状态、根据客户需求可配置。 *: ①:提供资讯,沪上各个板块的房源充足.大平层公寓.花园别墅.老洋房.根据你的需求.匹配合适的房子及圈层,熟悉上海豪宅,全城看房 ②:保护隐私,曾服务过客户包括世界500强高管,娱乐明星,知名企业家等高端客户,我明白获得尊重的方法,一定是靠自身的服务,行动的说明!,并提供专业服务。 ③:近期记录、挂牌行情、竞品房源、租房和购房政策欢迎**询问。 ④:客源信息是我的宝贵财源,所有来电一律保密惠存不外泄,以免您备受骚扰 ⑤:所有房源本人都亲自上门杜实堪,杜绝虚假房源,以免浪费您宝贵的时间。 租赁期内我们会*以下服务:1. *境外人士入境后,警署暂住登记证明。For people outside the police station afterthe entry, temporary registration certificate。2. *租赁期内,代缴水电煤等预期账单。Provide the lease period, payment of utilitycoal expected bill3. *本地阿姨钟点打扫服务(包括烫衣,烧饭,煲汤,衣服洗服务)Providelocal aunt part-time cleaning service (inclu*g ironing, cooking, soup, laundryservice) 上海新天地:锦麟天地、华府天地、翠湖天地御苑、济南路8号、淮海晶华、时代豪庭; 淮海中路:凯德茂名公馆、上海天玺、露香园、城市一品苑;思南路:思南公馆、香山丽舍; 老码头南外滩:融创外滩壹号院、绿城黄浦湾、外滩九里;南京东路人民广场:华侨城苏河湾; 浦东陆家嘴:汤臣一品、中粮海景、滨江凯旋门、财富海景;:嘉御庭; 静安南京西路:中凯城市之光、国际丽都、静安豪景、静安四季、远中风华、泰府名邸、御品大厦、经典茂名公寓; 这些地方都有房子在出租,有需要的联系我,【价格图片真实】随时恭候。
-
小区配套问经纪人
小区地理位置佳,绿化环境优越整洁,居民素质高,物业管理完善,适宜居住。
-
服务介绍问经纪人
本人做房产多年,本着熟练的房产知识,为您服务,我会在短的时间内帮您找到满意的房子,不让您错失任何好房子,更不让您每天为房的事烦心,欢迎随时拨打我电话。
-
周边配套问经纪人
周边生活设施齐全,具备车库/车位等基础设施,商店距离近,乘坐公交方便
-
交通出行问经纪人
小区周边具有多条公交线路,出行方便,交通便利
周边配套
- 免费咨询
- 专业服务
- 区域解读
- 户型分析

