长宁区全新楼盘丨号线三轨交汇上盖丨装修家具全送!
-
4.2元/平米·天
租金
-
精装修
装修
-
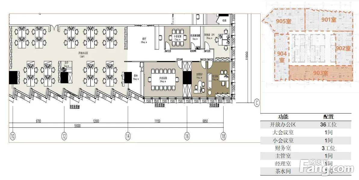
600㎡
建筑面积
租房不踩坑
3000+人正在热聊
-
楼盘名称
长宁国际发展广场
-
区域
长宁
-
物业费
42元/平米·月
-
类型
纯写字楼
-
等级
暂无
-
挂牌时间
2025-11-26
-
支付方式
押三付一
-
入驻时间
2025-11-29
费用明细
-
押三付一
付款方式
-
4.2
租金(元/平米·天)
-
***
押金
-
***
服务费
- 房租含取暖费吗?
- 房租含物业费吗?
房源描述
-
房源亮点问经纪人
新长宁国际发展广场 面积: 600 平 报价 4.2元/平米/天预计 物业费 42元/平/月(前三年九折37.8元,含空调早8晚7,加时0.27元/平米/时) 长宁国际IM Shanghai是位于上海市浦西市中心内环内的大型商业综合项目总建筑面积超过25万平方米,由石榴集团开发。上海长宁国际Innovation Mix Shanghai(简称IMShanghai)位于上海市凯旋路1398号(在淮海西路及虹桥路交界),是上海市中心内环内一个集三条轨交连接,并获得LEED金预认证的综合性商业项目。IM Shanghai共分南北两个区块占地面积40,384平方米,项目总建筑面积257,822平方米,有4座甲-级办公大楼、8栋特色商业建筑、下沉式商业广场、VIP健身会所、超市及1350个停车位。集团过百亿耗时6载精细打造。 车位1600元/月,临时10元 空调开放时长 空调早8晚7,加时0.27元/平米/时
-
服务介绍问经纪人
本公司关注写字楼租赁10年之久本着只做租赁、所以专业的理念为企业提供专业而优-质的服务;本公司有着丰富的房源库可满足各个阶段类型的公司,可随时根据业务需要,扩大、缩小空间迁移办公地点。细心分析您的需求
-
周边配套问经纪人
长宁国际IM Shanghai 是位于上海市浦西市中心内环内的大型商业综合项目总建筑面积超过25万平方米,由石榴集团投资开发。 上海长宁国际Innovation Mix Shanghai (简称IM Shanghai) 位于上海市凯旋路1398号(在淮海西路及虹桥路交界),是上海市中心内环内一个集三条轨交连接, 并获得LEED金预认证的综合性商业项目。 IM Shanghai 共分南北两个区块占地面积40,384平方米,项目总建筑面积 257,822平方米,有4座甲级办公大楼、8栋特色商业建筑、下沉式商业广场、VIP健身会所、精品超市及1350个停车位。 集团过百亿投资耗时6载精细打造。
-
交通出行问经纪人
交通虹桥路地铁10号线;地铁3号线;地铁4号线内圈;地铁4号线外圈中山西路虹桥路48路;72路;141路;149路;224路;328路;776路;808路;855路;909路
长宁新华路
建成2019年
周边配套
- 免费咨询
- 专业服务
- 区域解读
- 户型分析


