34320
元/月
押一付三
真房|假必赔-金外滩花园4居室
-
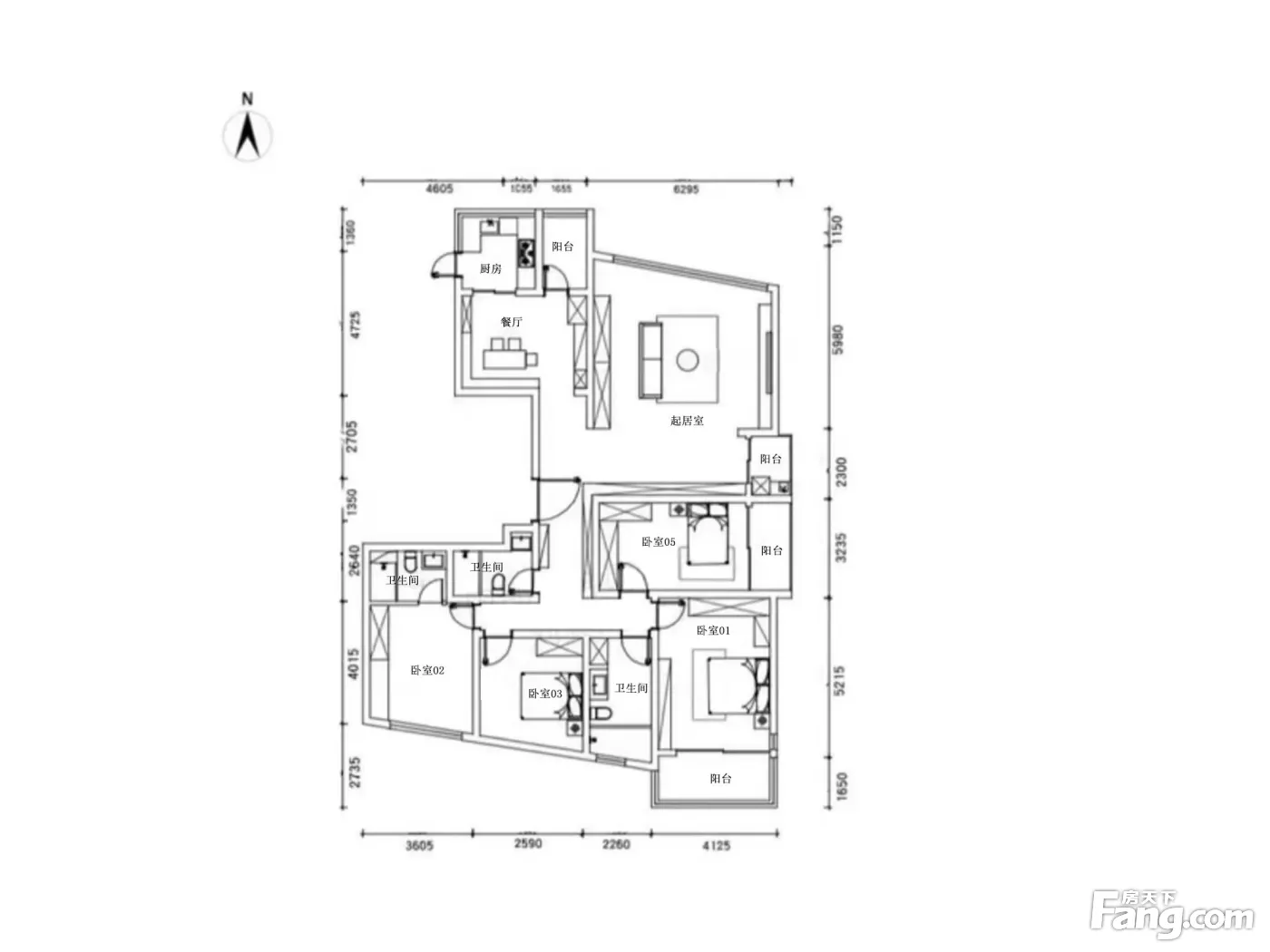
4室1厅1卫
整租
-
209.58㎡
面积
-
低层/27层
楼层
-
南
朝向
2025-11-06更新
租房不踩坑
3000+人正在热聊
加入群聊
-
看房
随时看房
-
装修
简装修
-
入住
暂无
-
咨询经纪人,了解更多房源信息
问一问
郑重提示:请您在签订合同之前,切勿支付任何形式的费用,以免上当受骗。
费用明细
-
押一付三
付款方式
-
34320
租金(元/月)
-
***
押金
-
***
服务费
- 房租含取暖费吗?
- 房租含物业费吗?
房屋设施
- 床
- 宽带
- 暖气
- 电视
- 空调
- 冰箱
- 洗衣机
- 热水器
- 煤气
- 家具
- 微波炉
- 可做饭
- 卫生间
- 沙发
- 衣柜
- 阳台
- 电梯
- 油烟机
- 智能门锁
- 橱柜
- 燃气灶
- 电磁炉
- 餐桌
- 电话
- 厨具
- 独立卫生间
- 独立阳台
- 露台
- 阁楼
- 游泳池
- 阳光房
房源描述
-
房源亮点问经纪人
房屋介绍:此房为住宅豪装,客厅朝南带阳台,屋内家电家具全配,.配置齐全,洗衣机带烘干,真的是拎包入住~ 周边配套:大型购物商场,大型超市,24便利店,临近地铁,公园,菜场,多种餐厅,咖啡厅,健身房,银行等等…… 小区介绍:小区有物业24H安保,物业服务人员态度非常好,同时也有停您爱车的位置。
-
小区配套问经纪人
位置:小区地理位置佳,绿化率高,居民素质高 配套:有健身器材,小型篮球场,可供小区居民使用 车位:停车位充足,建有地上停车场和地下车库 保安:小区内24保安巡逻
-
服务介绍问经纪人
本人从事房地产多年,公司有大量好房源,欢迎进入我的店铺查看,欢迎随时电话咨询,相信我的专业,为您置业安家保驾护航。
-
周边配套问经纪人
南面临江有滨江跑道、儿童艺术馆、中国船舶馆、中国航空馆,休闲跑步看电影好去处。 小区楼下有家得利超市、全家罗森等便利店。还有招商银行、交通银行和建设银行
-
交通出行问经纪人
出门就是地铁站,500米上内环高架,1公里上内环高速,不管是地铁出行还是驾车出行都非常便利
周边配套
地址:中山南路200弄1-11号
- 免费咨询
- 专业服务
- 区域解读
- 户型分析
免责声明:房源信息由网站用户提供,其真实性、合法性由信息提供者负责,最终以政府部门登记备案为准。本网站内容凡涉及面积单位均为建筑面积,本网站不声明或保证内容之正确性和可靠性,租赁该房屋时,请谨慎核查。

