28500
元/月
押一付三
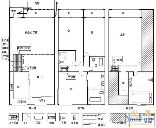
虹桥中华园 新出联排别墅 带地暖 中央空调 中心位
-
4室3厅3卫
整租
-
225㎡
面积
-
北
朝向
2026-01-15更新
租房不踩坑
3000+人正在热聊
加入群聊
-
看房
电话预约
-
装修
中装修
-
入住
2025-05-09
-
咨询经纪人,了解更多房源信息
问一问
郑重提示:请您在签订合同之前,切勿支付任何形式的费用,以免上当受骗。
费用明细
-
押一付三
付款方式
-
28500
租金(元/月)
-
***
押金
-
***
服务费
- 房租含取暖费吗?
- 房租含物业费吗?
房源描述
-
房源亮点问经纪人
亮点 : 地暖 中央 空调 中心位置 价格低 业主诚意出租
周边配套
地址:虹桥路2388号
- 免费咨询
- 专业服务
- 区域解读
- 户型分析
免责声明:房源信息由网站用户提供,其真实性、合法性由信息提供者负责,最终以政府部门登记备案为准。本网站内容凡涉及面积单位均为建筑面积,本网站不声明或保证内容之正确性和可靠性,租赁该房屋时,请谨慎核查。


