4000
元/月
年付
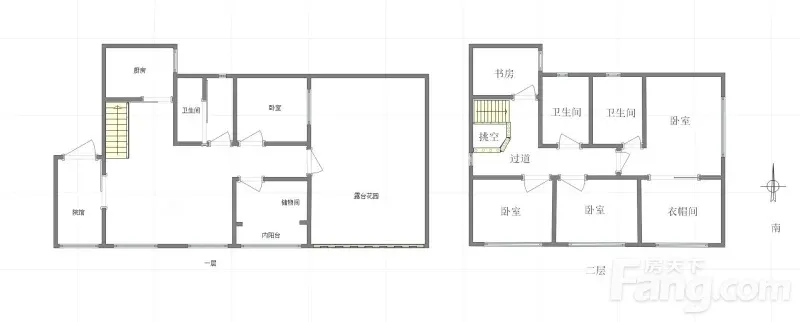
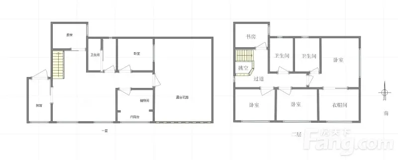
南华街260平6室2厅 南北通透业主直租
-
6室2厅3卫
整租
-
260㎡
面积
-
低层/16层
楼层
-
南
朝向
2025-06-29更新
租房不踩坑
3000+人正在热聊
加入群聊
-
看房
-
-
装修
精装修
-
入住
随时入住
-
咨询经纪人,了解更多房源信息
问一问
郑重提示:请您在签订合同之前,切勿支付任何形式的费用,以免上当受骗。
费用明细
-
年付
付款方式
-
4000
租金(元/月)
-
***
押金
-
***
服务费
- 房租含取暖费吗?
- 房租含物业费吗?
房屋设施
- 床
- 宽带
- 暖气
- 电视
- 空调
- 冰箱
- 洗衣机
- 热水器
- 煤气
- 家具
- 微波炉
- 可做饭
- 卫生间
- 沙发
- 衣柜
- 阳台
- 电梯
- 油烟机
- 智能门锁
- 橱柜
- 燃气灶
- 电磁炉
- 餐桌
- 电话
- 厨具
- 独立卫生间
- 独立阳台
- 露台
- 阁楼
- 游泳池
- 阳光房
业主自评
-
天涯浪子
加入房天下3252天
接电时间:8:00-22:00
【宽敞6室2厅3卫】 房源为260平大户型,拥有6间卧室、2个客厅和3个独立卫生间,适合多人居住或家庭合租,空间布局合理,满足多样化居住需求。 【南北通透采光佳】 房屋朝南设计,搭配南北通透格局,确保室内通风良好且采光充足,独立阳台延伸生活空间,居住舒适度显著提升。 【业主直租无中介】 本房源为业主直接出租,省去中介环节,租金定价4000元/月,支持年付方式,租客可随时看房并协商入住时间,流程高效透明。 【配套齐全生活便利】 位于南方花园名人苑小区,南华街66号地理位置优越,周边生活设施完善,购物、餐饮等日常需求步行可达,居住便捷性有保障。
【宽敞6室2厅3卫】 房源为260平大户型,拥有6间卧室、2个客厅和3个独立卫生间,适合多人居住或家庭合租,空间布局合理,满足多样化居住需求。 【南北通透采光佳】 房屋朝南设计,搭配南北通透格局,确保室内通风良好且采光充足,独立阳台延伸生活空间,居住舒适度显著提升。 【业主直租无中介】 本房源为业主直接出租,省去中介环节,租金定价4000元/月,支持年付方式,租客可随时看房并协商入住时间,流程高效透明。 【配套齐全生活便利】 位于南方花园名人苑小区,南华街66号地理位置优越,周边生活设施完善,购物、餐饮等日常需求步行可达,居住便捷性有保障。
周边配套
地址:南华街66号
联系业主
免责声明:房源信息由网站用户提供,其真实性、合法性由信息提供者负责,最终以政府部门登记备案为准。本网站内容凡涉及面积单位均为建筑面积,本网站不声明或保证内容之正确性和可靠性,租赁该房屋时,请谨慎核查。

